Woning Meidoornlaan 16 Harmelen

Meidoornlaan 16, 3481XL Harmelen

Ontvang updates voor Harmelen-Zuid (dorp)

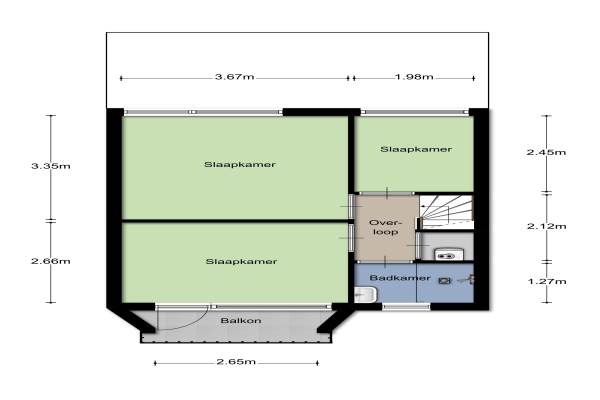
Het adres van deze woning uit 1960 is Meidoornlaan 16 te Harmelen. Het pand heeft een oppervlakte van 84m² en een perceeloppervlakte van 229m² en heeft 4 kamers kamers waarvan 3 slaapkamers. De geschatte waarde van deze woning is € 315.000.

Bekijk alle woningen in Harmelen-Zuid (dorp)

Gegevens van Eengezinswoning, hoekwoning

Bouwjaar
1960
Geschatte waarde
€ 315.000
Oppervlakte
84 m2
Inhoud
289 m3
Aantal kamers
4 kamers
Slaapkamers
3
Soort bouw
Bestaande bouw
Eigendomssituatie
Volle eigendom
Ligging
In centrum
Tuin
Achtertuin en voortuin
Achtertuin
54 m² (9m diep en 6m breed)

Voorzieningen in de buurt

Boodschappen0,7 km
Grote supermarkt0,7 km
Cafetaria0,7 km
Restaurant0,8 km
Huisarts0,7 km
Ziekenhuis4,9 km
Kinderdagverblijf0,6 km
BSO0,7 km
Alle voorzieningen in Harmelen-Zuid (dorp)

Binnenkijken bij Meidoornlaan 16 te Harmelen

Meer meldingen in deze omgeving

Binnenkijken bij
Donderdag 4-12-2025
Stadhoudershof 26, 3481HV Harmelen

Binnenkijken bij
Zaterdag 29-11-2025
Stadhoudershof 59, 3481HW Harmelen

Binnenkijken bij
Vrijdag 21-11-2025
Dammolen 124, 3481AP Harmelen

Nieuw bedrijf
November 2025
Prinsenhof 3, 3481HA Harmelen

Binnenkijken bij
Dinsdag 18-11-2025
Stadhoudershof 12, 3481HT Harmelen

Binnenkijken bij
Zaterdag 15-11-2025
Paltrokmolen 9, 3481AA Harmelen

Nieuw bedrijf
November 2025
Beatrixlaan 19, 3481CD Harmelen

Binnenkijken bij
Dinsdag 11-11-2025
Statenhof 16, 3481KH Harmelen

Direct een e-mail ontvangen bij nieuwe meldingen in deze regio?

Meld je dan GRATIS aan voor de Oozo Alert service voor Harmelen-Zuid (dorp)

Instellen

Meer nieuws in Harmelen-Zuid (dorp)

Weten hoe eenvoudig het is om af te vallen? Zonder pillen en smeersels en zonder je in het zweet te werken!
Kijk op eenvoudig-afvallen.nl

© 2012 - 2025 OOZO.nl - info@oozo.nl - Gegevens verwijderen? | Disclaimer | Privacy statement