Woning de Zaan 28 Woerden

de Zaan 28, 3448BS Woerden

Ontvang updates voor Molenvliet-Oost

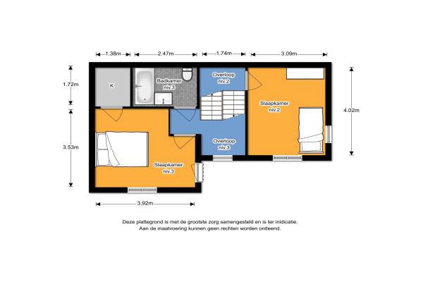
Het adres van deze woning uit 1980 is de Zaan 28 te Woerden. Het pand heeft een oppervlakte van 128m² en heeft 5 kamers kamers waarvan 3 slaapkamers. De geschatte waarde van deze woning is € 259.500.

Bekijk alle woningen in Molenvliet-Oost

Gegevens van Bovenwoning

Bouwjaar
1980
Geschatte waarde
€ 259.500
Oppervlakte
128 m2
Inhoud
427 m3
Aantal kamers
5 kamers
Slaapkamers
3
Soort bouw
Bestaande bouw
Ligging
Aan rustige weg, in woonwijk en vrij uitzicht
Tuin
Achtertuin
Achtertuin
24 m² (5,33m diep en 4,5m breed)

Voorzieningen in de buurt

Boodschappen0,6 km
Grote supermarkt0,7 km
Cafetaria0,7 km
Restaurant0,7 km
Huisarts0,7 km
Ziekenhuis2,7 km
Kinderdagverblijf0,8 km
BSO0,6 km
Alle voorzieningen in Molenvliet-Oost

Binnenkijken bij de Zaan 28 te Woerden

Meer meldingen in deze omgeving

Nieuw bedrijf
November 2025
Molenvlietbrink 246, 3448HS Woerden

Nieuw bedrijf
November 2025
Molenvlietbrink 170, 3448HR Woerden

112 melding
Donderdag 30-10-2025 om 08:45
Molenvlietbaan, Woerden

112 melding
Donderdag 30-10-2025 om 08:45
Molenvlietbaan, Woerden

Binnenkijken bij
Woensdag 29-10-2025
Polderbaan 17, 3448DA Woerden

112 melding
Zaterdag 25-10-2025 om 19:30
Maasoord, Woerden

Nieuw bedrijf
Oktober 2025
de Hunze 18, 3448XH Woerden

Nieuw bedrijf
Oktober 2025
IJsseloord 61, 3448VD Woerden

Direct een e-mail ontvangen bij nieuwe meldingen in deze regio?

Meld je dan GRATIS aan voor de Oozo Alert service voor Molenvliet-Oost

Instellen

Meer nieuws in Molenvliet-Oost

Weten hoe eenvoudig het is om af te vallen? Zonder pillen en smeersels en zonder je in het zweet te werken!
Kijk op eenvoudig-afvallen.nl

© 2012 - 2025 OOZO.nl - info@oozo.nl - Gegevens verwijderen? | Disclaimer | Privacy statement