Woning Tjadenweg 7 Wijdewormer

Tjadenweg 7, 1456AN Wijdewormer

Ontvang updates voor Neck (gedeeltelijk)

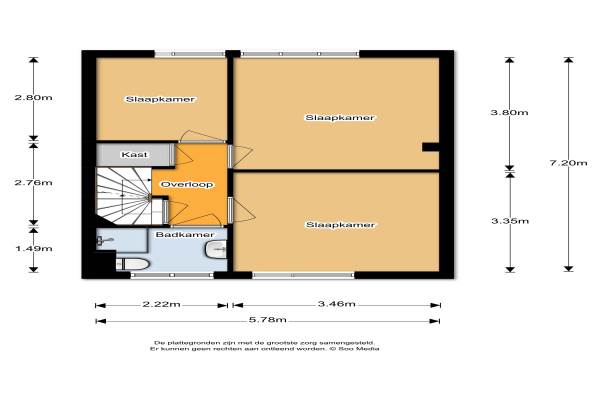
Het adres van deze woning uit 1983 is Tjadenweg 7 te Wijdewormer. Het pand heeft een oppervlakte van 105m² en een perceeloppervlakte van 179m² en heeft 5 kamers kamers waarvan 3 slaapkamers. De geschatte waarde van deze woning is € 250.000.

Bekijk alle woningen in Neck (gedeeltelijk)

Gegevens van Eengezinswoning, tussenwoning

Bouwjaar
1983
Geschatte waarde
€ 250.000
Oppervlakte
105 m2
Inhoud
355 m3
Aantal kamers
5 kamers
Slaapkamers
3
Badkamers
1 badkamer en 1 apart toilet
Soort bouw
Bestaande bouw
Eigendomssituatie
Volle eigendom
Ligging
In woonwijk
Tuin
Achtertuin en voortuin
Achtertuin
65 m² (10,6m diep en 6,1m breed)

Voorzieningen in de buurt

Boodschappen2,3 km
Grote supermarkt2,4 km
Cafetaria2,5 km
Restaurant0,5 km
Huisarts2,7 km
Ziekenhuis4,1 km
Kinderdagverblijf0,3 km
BSO0,3 km
Alle voorzieningen in Neck (gedeeltelijk)

Binnenkijken bij Tjadenweg 7 te Wijdewormer

Meer meldingen in deze omgeving

112 melding
Vrijdag 22-5-2026 om 08:54
Ringdijk, Wijdewormer

112 melding
Zaterdag 16-5-2026 om 15:55
Tjadenweg, Wijdewormer

Nieuw bedrijf
Mei 2026
Hallerweg 60, 1456AX Wijdewormer

112 melding
Woensdag 6-5-2026 om 10:23
Ringdijk, Wijdewormer

Binnenkijken bij
Dinsdag 5-5-2026
Ringdijk 40AR, 1456AK Wijdewormer

Binnenkijken bij
Vrijdag 1-5-2026
Leeghwaterstraat 6, 1456AC Wijdewormer

112 melding
Dinsdag 21-4-2026 om 22:38
Pieter Slootenweg, 1456AB Wijdewormer

112 melding
Dinsdag 21-4-2026 om 22:38
Pieter Slootenweg, 1456AB Wijdewormer

Direct een e-mail ontvangen bij nieuwe meldingen in deze regio?

Meld je dan GRATIS aan voor de Oozo Alert service voor Neck (gedeeltelijk)

Instellen

Meer nieuws in Neck (gedeeltelijk)

Weten hoe eenvoudig het is om af te vallen? Zonder pillen en smeersels en zonder je in het zweet te werken!
Kijk op eenvoudig-afvallen.nl

© 2012 - 2026 OOZO.nl - info@oozo.nl - Gegevens verwijderen? | Disclaimer | Privacy statement