Woning Wezenland 76 Wormer

Wezenland 76, 1531LP Wormer

Ontvang updates voor Middentil

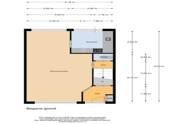
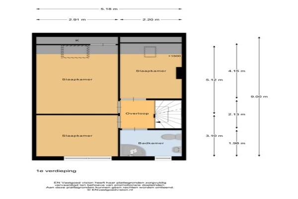
Het adres van deze woning uit 1983 is Wezenland 76 te Wormer. Het pand heeft een oppervlakte van 109m² en een perceeloppervlakte van 118m² en heeft 5 kamers kamers waarvan 4 slaapkamers. De geschatte waarde van deze woning is € 375.000.

Bekijk alle woningen in Middentil

Gegevens van Eengezinswoning

Bouwjaar
1983
Geschatte waarde
€ 375.000
Oppervlakte
109 m2
Inhoud
376 m3
Aantal kamers
5 kamers
Slaapkamers
4
Badkamers
1 badkamer
Soort bouw
Bestaande bouw
Eigendomssituatie
Volle eigendom
Tuin
Tuin

Voorzieningen in de buurt

Boodschappen0,5 km
Grote supermarkt1,0 km
Cafetaria0,4 km
Restaurant0,8 km
Huisarts0,4 km
Ziekenhuis6,1 km
Kinderdagverblijf0,4 km
BSO0,4 km
Alle voorzieningen in Middentil

Binnenkijken bij Wezenland 76 te Wormer

Meer meldingen in deze omgeving

112 melding
Zondag 23-11-2025 om 19:17
Wezenland, Wormer

112 melding
Woensdag 12-11-2025 om 12:08
Wezenland, Wormer

112 melding
Woensdag 12-11-2025 om 11:41
Wezenland, Wormer

112 melding
Woensdag 8-10-2025 om 13:25
Wezenland, Wormer

112 melding
Vrijdag 3-10-2025 om 16:12
Haremakers, Wormer

112 melding
Zondag 28-9-2025 om 14:12
Torenlaan, 1531JD Wormer

112 melding
Dinsdag 23-9-2025 om 21:46
Wezenland, Wormer

112 melding
Zondag 7-9-2025 om 18:40
Wezenland, Wormer

Direct een e-mail ontvangen bij nieuwe meldingen in deze regio?

Meld je dan GRATIS aan voor de Oozo Alert service voor Middentil

Instellen

Meer nieuws in Middentil

Weten hoe eenvoudig het is om af te vallen? Zonder pillen en smeersels en zonder je in het zweet te werken!
Kijk op eenvoudig-afvallen.nl

© 2012 - 2025 OOZO.nl - info@oozo.nl - Gegevens verwijderen? | Disclaimer | Privacy statement