Woning Willem Sijpesteijnstraat 61 Assendelft

Willem Sijpesteijnstraat 61, 1566KG Assendelft

Ontvang updates voor Langeheit

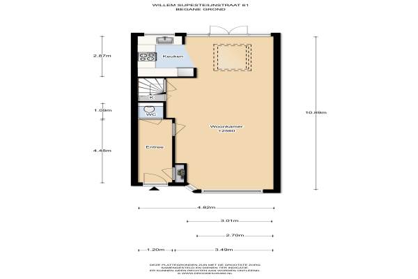
Het adres van deze woning uit 1939 is Willem Sijpesteijnstraat 61 te Assendelft. Het pand heeft een oppervlakte van 100m² en een perceeloppervlakte van 121m² en heeft 4 kamers kamers waarvan 3 slaapkamers. De geschatte waarde van deze woning is € 250.000.

Bekijk alle woningen in Langeheit

Gegevens van Eengezinswoning, tussenwoning

Bouwjaar
1939
Geschatte waarde
€ 250.000
Oppervlakte
100 m2
Inhoud
324 m3
Aantal kamers
4 kamers
Slaapkamers
3
Badkamers
1 badkamer en 1 apart toilet
Soort bouw
Bestaande bouw
Eigendomssituatie
Volle eigendom
Ligging
Aan rustige weg en in woonwijk
Tuin
Achtertuin en voortuin
Achtertuin
45 m² (9m diep en 5m breed)

Voorzieningen in de buurt

Boodschappen0,3 km
Grote supermarkt1,2 km
Cafetaria0,3 km
Restaurant0,3 km
Huisarts1,1 km
Ziekenhuis1,2 km
Kinderdagverblijf0,3 km
BSO0,3 km
Alle voorzieningen in Langeheit

Binnenkijken bij Willem Sijpesteijnstraat 61 te Assendelft

Meer meldingen in deze omgeving

112 melding
Donderdag 11-12-2025 om 21:48
Burgemeester de Boerstraat, Assendelft

Binnenkijken bij
Donderdag 11-12-2025
Vaartdijk 60, 1566PS Assendelft

112 melding
Dinsdag 9-12-2025 om 00:35
Willem Sijpesteijnstraat, Assendelft

112 melding
Dinsdag 9-12-2025 om 00:35
Willem Sijpesteijnstraat, Assendelft

112 melding
Maandag 8-12-2025 om 08:11
Industrieweg, Assendelft

112 melding
Maandag 8-12-2025 om 08:11
Industrieweg, Assendelft

112 melding
Maandag 8-12-2025 om 08:09
Industrieweg, Assendelft

112 melding
Maandag 8-12-2025 om 08:09
Industrieweg, Assendelft

Direct een e-mail ontvangen bij nieuwe meldingen in deze regio?

Meld je dan GRATIS aan voor de Oozo Alert service voor Langeheit

Instellen

Meer nieuws in Langeheit

Weten hoe eenvoudig het is om af te vallen? Zonder pillen en smeersels en zonder je in het zweet te werken!
Kijk op eenvoudig-afvallen.nl

© 2012 - 2025 OOZO.nl - info@oozo.nl - Gegevens verwijderen? | Disclaimer | Privacy statement