Woning Biatlon 35 Assendelft

Biatlon 35, 1567JA Assendelft

Ontvang updates voor Parkrijk

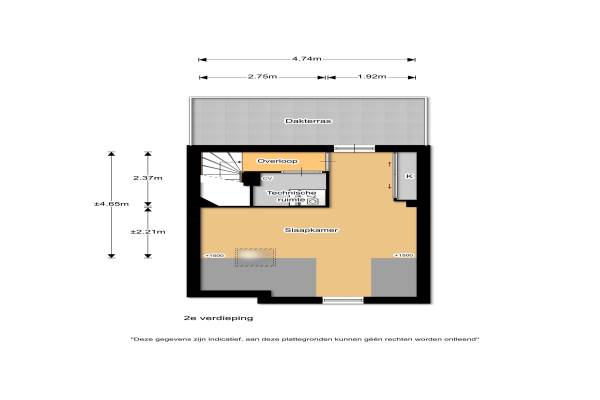
Het adres van deze woning uit 2008 is Biatlon 35 te Assendelft. Het pand heeft 5 kamers kamers waarvan 4 slaapkamers. De geschatte waarde van deze woning is € 350.000.

Bekijk alle woningen in Parkrijk

Gegevens van Eengezinswoning, hoekwoning

Bouwjaar
2008
Geschatte waarde
€ 350.000
Oppervlakte
0 m2
Inhoud
375 m3
Aantal kamers
5 kamers
Slaapkamers
4
Badkamers
1 badkamer en 1 apart toilet
Soort bouw
Bestaande bouw
Eigendomssituatie
Volle eigendom
Ligging
Aan park, aan rustige weg en in woonwijk
Tuin
Achtertuin, voortuin en zijtuin
Achtertuin
53 m² (7m diep en 7,5m breed)

Voorzieningen in de buurt

Boodschappen0,6 km
Grote supermarkt0,7 km
Cafetaria0,7 km
Restaurant0,7 km
Huisarts0,7 km
Ziekenhuis0,7 km
Kinderdagverblijf0,5 km
BSO0,5 km
Alle voorzieningen in Parkrijk

Binnenkijken bij Biatlon 35 te Assendelft

Meer meldingen in deze omgeving

Binnenkijken bij
Vrijdag 27-3-2026
Sierra Nevada 41, 1567KN Assendelft

Binnenkijken bij
Vrijdag 27-3-2026
Veenland 9, 1567CB Assendelft

Nieuw bedrijf
Maart 2026
Vennenland 1, 1567EM Assendelft

Binnenkijken bij
Donderdag 26-3-2026
Estafette 28, 1567JM Assendelft

Binnenkijken bij
Dinsdag 24-3-2026
Zwarte Ring 93, 1567ED Assendelft

Binnenkijken bij
Dinsdag 24-3-2026
W.M. Dudokstraat 68, 1567GS Assendelft

Binnenkijken bij
Dinsdag 24-3-2026
J M van der Meystraat 47, 1567GA Assendelft

Binnenkijken bij
Dinsdag 24-3-2026
Communicatieweg West 26, 1566NX Assendelft

Direct een e-mail ontvangen bij nieuwe meldingen in deze regio?

Meld je dan GRATIS aan voor de Oozo Alert service voor Parkrijk

Instellen

Meer nieuws in Parkrijk

Weten hoe eenvoudig het is om af te vallen? Zonder pillen en smeersels en zonder je in het zweet te werken!
Kijk op eenvoudig-afvallen.nl

© 2012 - 2026 OOZO.nl - info@oozo.nl - Gegevens verwijderen? | Disclaimer | Privacy statement