Woning Eikelaan 88 Krommenie

Eikelaan 88, 1561CG Krommenie

Ontvang updates voor Rosariumbuurt

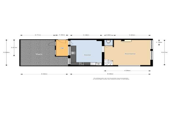
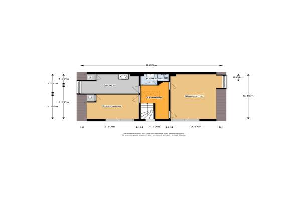
Het adres van deze woning uit 1950 is Eikelaan 88 te Krommenie. Het pand heeft een oppervlakte van 95m² en heeft 4 kamers kamers waarvan 3 slaapkamers. De geschatte waarde van deze woning is € 175.000.

Bekijk alle woningen in Rosariumbuurt

Gegevens van Bovenwoning (appartement)

Bouwjaar
1950
Geschatte waarde
€ 175.000
Oppervlakte
95 m2
Inhoud
340 m3
Aantal kamers
4 kamers
Slaapkamers
3
Badkamers
1 badkamer en 1 apart toilet
Soort bouw
Bestaande bouw
Eigendomssituatie
Volle eigendom
Ligging
In woonwijk en vrij uitzicht

Voorzieningen in de buurt

Boodschappen0,3 km
Grote supermarkt0,4 km
Cafetaria0,4 km
Restaurant0,4 km
Huisarts0,4 km
Ziekenhuis2,3 km
Kinderdagverblijf0,3 km
BSO0,5 km
Alle voorzieningen in Rosariumbuurt

Binnenkijken bij Eikelaan 88 te Krommenie

Meer meldingen in deze omgeving

Nieuw bedrijf
November 2025
van Henegouwenstraat 9, 1561VV Krommenie

112 melding
Zondag 9-11-2025 om 17:13
Rosariumpark, Krommenie

112 melding
Zondag 9-11-2025 om 10:31
Willem van Saendenstraat, Krommenie

112 melding
Vrijdag 7-11-2025 om 04:20
Gerrit Schaarstraat, Krommenie

112 melding
Maandag 3-11-2025 om 15:54
Rosariumplein, 1561DX Krommenie

112 melding
Maandag 3-11-2025 om 13:24
Josua Gekeerstraat, 1561VR Krommenie

112 melding
Zaterdag 1-11-2025 om 19:50
Gerrit Schaarstraat, Krommenie

112 melding
Woensdag 29-10-2025 om 17:55
Landzichtlaan, Krommenie

Direct een e-mail ontvangen bij nieuwe meldingen in deze regio?

Meld je dan GRATIS aan voor de Oozo Alert service voor Rosariumbuurt

Instellen

Meer nieuws in Rosariumbuurt

Weten hoe eenvoudig het is om af te vallen? Zonder pillen en smeersels en zonder je in het zweet te werken!
Kijk op eenvoudig-afvallen.nl

© 2012 - 2025 OOZO.nl - info@oozo.nl - Gegevens verwijderen? | Disclaimer | Privacy statement