Woning Madeliefstraat 20 Krommenie

Madeliefstraat 20, 1562RW Krommenie

Ontvang updates voor Noorderham

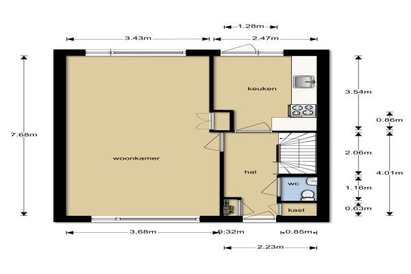
Het adres van deze woning uit 1968 is Madeliefstraat 20 te Krommenie. Het pand heeft een oppervlakte van 111m² en een perceeloppervlakte van 138m² en heeft 5 kamers kamers waarvan 4 slaapkamers. De geschatte waarde van deze woning is € 225.000.

Bekijk alle woningen in Noorderham

Gegevens van Eengezinswoning, tussenwoning

Bouwjaar
1968
Geschatte waarde
€ 225.000
Oppervlakte
111 m2
Inhoud
388 m3
Aantal kamers
5 kamers
Slaapkamers
4
Badkamers
1 badkamer en 1 apart toilet
Soort bouw
Bestaande bouw
Eigendomssituatie
Volle eigendom
Ligging
Aan rustige weg en in woonwijk
Tuin
Achtertuin en voortuin
Achtertuin
60 m² (10m diep en 6m breed)

Voorzieningen in de buurt

Boodschappen0,4 km
Grote supermarkt0,5 km
Cafetaria0,6 km
Restaurant0,7 km
Huisarts0,6 km
Ziekenhuis2,3 km
Kinderdagverblijf0,5 km
BSO0,9 km
Alle voorzieningen in Noorderham

Binnenkijken bij Madeliefstraat 20 te Krommenie

Meer meldingen in deze omgeving

112 melding
Woensdag 31-12-2025 om 22:09
Van Allenstraat, Krommenie

112 melding
Maandag 29-12-2025 om 17:05
Weegbreestraat, 1562SE Krommenie

112 melding
Zondag 28-12-2025 om 07:48
Lisdoddelaan, Krommenie

Nieuw bedrijf
December 2025
Vederdistelstraat 15, 1562AR Krommenie

112 melding
Dinsdag 23-12-2025 om 19:40
Zilverschoonlaan, Krommenie

112 melding
Dinsdag 23-12-2025 om 19:20
Zilverschoonlaan, Krommenie

112 melding
Zondag 21-12-2025 om 08:10
Gagarinstraat, Krommenie

Binnenkijken bij
Zaterdag 20-12-2025
Hoefbladstraat 3, 1562SH Krommenie

Direct een e-mail ontvangen bij nieuwe meldingen in deze regio?

Meld je dan GRATIS aan voor de Oozo Alert service voor Noorderham

Instellen

Meer nieuws in Noorderham

Weten hoe eenvoudig het is om af te vallen? Zonder pillen en smeersels en zonder je in het zweet te werken!
Kijk op eenvoudig-afvallen.nl

© 2012 - 2026 OOZO.nl - info@oozo.nl - Gegevens verwijderen? | Disclaimer | Privacy statement