Woning Plutostraat 70 Krommenie

Plutostraat 70, 1562XK Krommenie

Ontvang updates voor Zuiderham

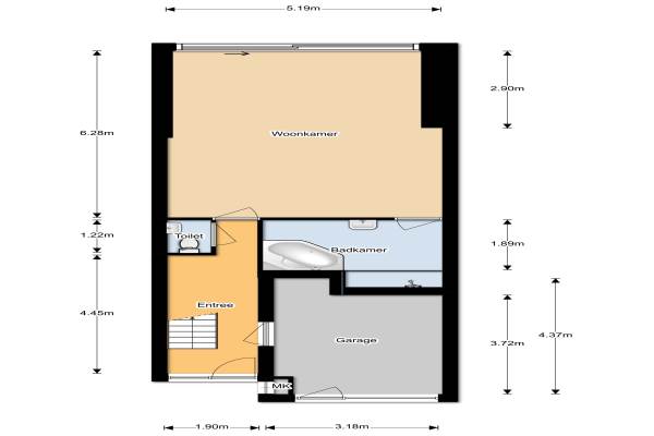
Het adres van deze woning uit 1974 is Plutostraat 70 te Krommenie. Het pand heeft een oppervlakte van 156m² en een perceeloppervlakte van 116m² en heeft 5 kamers kamers waarvan 3 slaapkamers. De geschatte waarde van deze woning is € 319.000.

Bekijk alle woningen in Zuiderham

Gegevens van Eengezinswoning, tussenwoning (drive-in woning)

Bouwjaar
1974
Geschatte waarde
€ 319.000
Oppervlakte
156 m2
Inhoud
553 m3
Aantal kamers
5 kamers
Slaapkamers
3
Badkamers
2 badkamers en 1 apart toilet
Soort bouw
Bestaande bouw
Eigendomssituatie
Volle eigendom
Ligging
Aan rustige weg en in woonwijk
Tuin
Achtertuin en voortuin
Achtertuin
35 m² (6,7m diep en 5,24m breed)

Voorzieningen in de buurt

Boodschappen0,5 km
Grote supermarkt0,5 km
Cafetaria0,5 km
Restaurant1,0 km
Huisarts0,4 km
Ziekenhuis1,9 km
Kinderdagverblijf0,4 km
BSO0,4 km
Alle voorzieningen in Zuiderham

Binnenkijken bij Plutostraat 70 te Krommenie

Meer meldingen in deze omgeving

112 melding
Dinsdag 25-11-2025 om 11:02
Kleine Beer, Krommenie

112 melding
Maandag 24-11-2025 om 15:45
Uranuslaan, Krommenie

112 melding
Maandag 24-11-2025 om 09:30
Kleine Beer, Krommenie

112 melding
Maandag 24-11-2025 om 08:13
Marslaan, Krommenie

112 melding
Vrijdag 21-11-2025 om 12:00
Busch, 1562HH Krommenie

Nieuw bedrijf
November 2025
Grote Beer 96, 1562VP Krommenie

112 melding
Donderdag 20-11-2025 om 09:50
Jupiterstraat, Krommenie

112 melding
Donderdag 20-11-2025 om 09:44
Jupiterstraat, Krommenie

Direct een e-mail ontvangen bij nieuwe meldingen in deze regio?

Meld je dan GRATIS aan voor de Oozo Alert service voor Zuiderham

Instellen

Meer nieuws in Zuiderham

Weten hoe eenvoudig het is om af te vallen? Zonder pillen en smeersels en zonder je in het zweet te werken!
Kijk op eenvoudig-afvallen.nl

© 2012 - 2025 OOZO.nl - info@oozo.nl - Gegevens verwijderen? | Disclaimer | Privacy statement