Woning Pieter Basstraat 31 Zaandam

Pieter Basstraat 31, 1507PM Zaandam

Ontvang updates voor Westerwatering

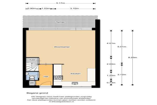
Het adres van deze woning uit 1988 is Pieter Basstraat 31 te Zaandam. Het pand heeft een oppervlakte van 100m² en een perceeloppervlakte van 181m² en heeft 5 kamers kamers waarvan 4 slaapkamers. De geschatte waarde van deze woning is € 325.000.

Bekijk alle woningen in Westerwatering

Gegevens van Eengezinswoning, hoekwoning

Bouwjaar
1988
Geschatte waarde
€ 325.000
Oppervlakte
100 m2
Inhoud
315 m3
Aantal kamers
5 kamers
Slaapkamers
4
Badkamers
1 badkamer en 1 apart toilet
Soort bouw
Bestaande bouw
Eigendomssituatie
Gemeentelijk eigendom belast met erfpacht (einddatum erfpacht: 31-03-2063)
Ligging
In woonwijk en vrij uitzicht
Tuin
Achtertuin, voortuin en zijtuin
Achtertuin
88 m² (11m diep en 8m breed)

Voorzieningen in de buurt

Boodschappen0,8 km
Grote supermarkt0,8 km
Cafetaria0,9 km
Restaurant0,8 km
Huisarts0,8 km
Ziekenhuis5,7 km
Kinderdagverblijf0,9 km
BSO0,9 km
Alle voorzieningen in Westerwatering

Binnenkijken bij Pieter Basstraat 31 te Zaandam

Meer meldingen in deze omgeving

112 melding
Zondag 18-1-2026 om 20:51
Langeweide, Zaandam

112 melding
Zondag 18-1-2026 om 19:59
Leerbroekstraat, Zaandam

112 melding
Zaterdag 17-1-2026 om 19:34
Caro van Eyckstraat, Zaandam

112 melding
Zaterdag 17-1-2026 om 19:34
Caro van Eyckstraat, Zaandam

Binnenkijken bij
Vrijdag 16-1-2026
Anna Blamanstraat 27, 1507XK Zaandam

112 melding
Donderdag 15-1-2026 om 20:07
Ilpendamstraat, 1507JZ Zaandam

Binnenkijken bij
Donderdag 15-1-2026
Nieuwendamstraat 20, 1507JE Zaandam

112 melding
Woensdag 14-1-2026 om 17:18
Cantate, Zaandam

Direct een e-mail ontvangen bij nieuwe meldingen in deze regio?

Meld je dan GRATIS aan voor de Oozo Alert service voor Westerwatering

Instellen

Meer nieuws in Westerwatering

Weten hoe eenvoudig het is om af te vallen? Zonder pillen en smeersels en zonder je in het zweet te werken!
Kijk op eenvoudig-afvallen.nl

© 2012 - 2026 OOZO.nl - info@oozo.nl - Gegevens verwijderen? | Disclaimer | Privacy statement