Woning Pinkstraat 10 Koog aan de Zaan

Pinkstraat 10, 1541HD Koog aan de Zaan

Ontvang updates voor Oud Koog

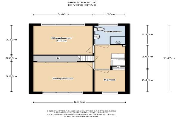
Het adres van deze woning uit 1940 is Pinkstraat 10 te Koog aan de Zaan. Het pand heeft een oppervlakte van 100m² en een perceeloppervlakte van 155m² en heeft 5 kamers kamers waarvan 4 slaapkamers. De geschatte waarde van deze woning is € 275.000.

Bekijk alle woningen in Oud Koog

Gegevens van Eengezinswoning, hoekwoning

Bouwjaar
1940
Geschatte waarde
€ 275.000
Oppervlakte
100 m2
Inhoud
325 m3
Aantal kamers
5 kamers
Slaapkamers
4
Badkamers
1 badkamer en 1 apart toilet
Soort bouw
Bestaande bouw
Eigendomssituatie
Volle eigendom
Ligging
Aan rustige weg en in woonwijk
Tuin
Achtertuin, voortuin en zijtuin
Achtertuin
66 m² (10,6m diep en 6,25m breed)

Voorzieningen in de buurt

Boodschappen0,3 km
Grote supermarkt0,5 km
Cafetaria0,4 km
Restaurant0,3 km
Huisarts0,5 km
Ziekenhuis2,1 km
Kinderdagverblijf0,4 km
BSO0,6 km
Alle voorzieningen in Oud Koog

Binnenkijken bij Pinkstraat 10 te Koog aan de Zaan

Meer meldingen in deze omgeving

Onroerend goed
Donderdag 23-4-2026
Stationsstraat 80, 1541LJ Koog aan de Zaan

Nieuw bedrijf
April 2026
Stationsstraat 31, 1541LE Koog aan de Zaan

112 melding
Dinsdag 21-4-2026 om 23:03
Stationsplein, 1541LK Koog aan de Zaan

112 melding
Dinsdag 21-4-2026 om 23:02
Stationsplein, 1541LK Koog aan de Zaan

112 melding
Vrijdag 17-4-2026 om 15:35
Sportstraat, 1541JL Koog aan de Zaan

Nieuw bedrijf
April 2026
Hoogstraat 7, 1541KW Koog aan de Zaan

112 melding
Donderdag 16-4-2026 om 10:42
Breestraat, Koog aan de Zaan

112 melding
Woensdag 15-4-2026 om 23:54
Kruisstraat, Koog aan de Zaan

Direct een e-mail ontvangen bij nieuwe meldingen in deze regio?

Meld je dan GRATIS aan voor de Oozo Alert service voor Oud Koog

Instellen

Meer nieuws in Oud Koog

Weten hoe eenvoudig het is om af te vallen? Zonder pillen en smeersels en zonder je in het zweet te werken!
Kijk op eenvoudig-afvallen.nl

© 2012 - 2026 OOZO.nl - info@oozo.nl - Gegevens verwijderen? | Disclaimer | Privacy statement