Woning Rozenstraat 44 Koog aan de Zaan

Rozenstraat 44, 1541DP Koog aan de Zaan

Ontvang updates voor Oud Koog

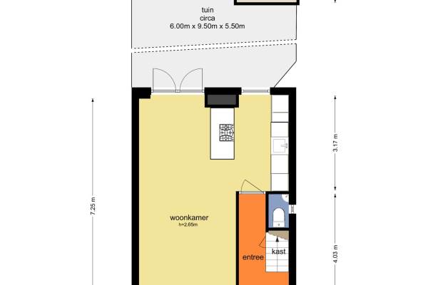
Het adres van deze woning uit 1927 is Rozenstraat 44 te Koog aan de Zaan. Het pand heeft een oppervlakte van 85m² en een perceeloppervlakte van 140m² en heeft 3 kamers kamers waarvan 2 slaapkamers. De geschatte waarde van deze woning is € 385.000.

Bekijk alle woningen in Oud Koog

Gegevens van Eengezinswoning, vrijstaande woning

Bouwjaar
1927
Geschatte waarde
€ 385.000
Oppervlakte
85 m2
Inhoud
278 m3
Aantal kamers
3 kamers
Slaapkamers
2
Badkamers
1 badkamer en 1 apart toilet
Soort bouw
Bestaande bouw
Eigendomssituatie
Volle eigendom
Ligging
Aan rustige weg en in woonwijk
Tuin
Achtertuin en voortuin
Achtertuin
55 m² (10 meter diep en 5,5 meter breed)

Voorzieningen in de buurt

Boodschappen0,3 km
Grote supermarkt0,5 km
Cafetaria0,4 km
Restaurant0,3 km
Huisarts0,5 km
Ziekenhuis2,1 km
Kinderdagverblijf0,4 km
BSO0,6 km
Alle voorzieningen in Oud Koog

Binnenkijken bij Rozenstraat 44 te Koog aan de Zaan

Meer meldingen in deze omgeving

112 melding
Donderdag 6-11-2025 om 05:06
Reëelenstraat, Koog aan de Zaan

112 melding
Maandag 3-11-2025 om 13:53
Verzetstraat, 1541HB Koog aan de Zaan

112 melding
Vrijdag 31-10-2025 om 15:36
Zuideinde, Koog aan de Zaan

112 melding
Vrijdag 31-10-2025 om 06:23
Zuideinde, Koog aan de Zaan

112 melding
Donderdag 30-10-2025 om 21:44
Leeghwaterstraat, Koog aan de Zaan

112 melding
Donderdag 30-10-2025 om 13:20
Lagendijk, Koog aan de Zaan

Binnenkijken bij
Donderdag 30-10-2025
Zuideinde 74S, 1541CE Koog aan de Zaan

Binnenkijken bij
Donderdag 30-10-2025
Pellekaanstraat 34A, 1541LM Koog aan de Zaan

Direct een e-mail ontvangen bij nieuwe meldingen in deze regio?

Meld je dan GRATIS aan voor de Oozo Alert service voor Oud Koog

Instellen

Meer nieuws in Oud Koog

Weten hoe eenvoudig het is om af te vallen? Zonder pillen en smeersels en zonder je in het zweet te werken!
Kijk op eenvoudig-afvallen.nl

© 2012 - 2025 OOZO.nl - info@oozo.nl - Gegevens verwijderen? | Disclaimer | Privacy statement