Woning Archangelstraat 52 Zaandam

Archangelstraat 52, 1506NS Zaandam

Ontvang updates voor Havenbuurt

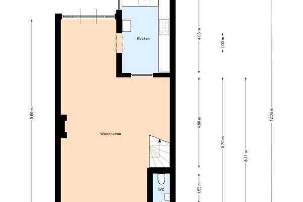
Het adres van deze woning uit 1910 is Archangelstraat 52 te Zaandam. Het pand heeft een oppervlakte van 107m² en een perceeloppervlakte van 178m² en heeft 5 kamers kamers waarvan 4 slaapkamers. De geschatte waarde van deze woning is € 465.000.

Bekijk alle woningen in Havenbuurt

Gegevens van Eengezinswoning, tussenwoning

Bouwjaar
1910
Geschatte waarde
€ 465.000
Oppervlakte
107 m2
Inhoud
481 m3
Aantal kamers
5 kamers
Slaapkamers
4
Badkamers
1 badkamer en 1 apart toilet
Soort bouw
Bestaande bouw
Eigendomssituatie
Volle eigendom
Ligging
Aan rustige weg, in woonwijk en vrij uitzicht
Tuin
Achtertuin en voortuin
Achtertuin
112 m² (19 meter diep en 5,9 meter breed)

Voorzieningen in de buurt

Boodschappen1,3 km
Grote supermarkt1,5 km
Cafetaria0,7 km
Restaurant1,4 km
Huisarts2,1 km
Ziekenhuis3,7 km
Kinderdagverblijf0,4 km
BSO0,4 km
Alle voorzieningen in Havenbuurt

Binnenkijken bij Archangelstraat 52 te Zaandam

Meer meldingen in deze omgeving

112 melding
Maandag 17-11-2025 om 09:01
Ketelhuis, 1505RD Zaandam

Binnenkijken bij
Vrijdag 14-11-2025
Archangelstraat 22, 1506NR Zaandam

Binnenkijken bij
Dinsdag 11-11-2025
Havenstraat 115, 1506PN Zaandam

112 melding
Zondag 9-11-2025 om 22:21
Archangelstraat, Zaandam

112 melding
Zaterdag 8-11-2025 om 00:27
Archangelstraat, Zaandam

112 melding
Vrijdag 31-10-2025 om 12:35
Havenstraat, Zaandam

112 melding
Donderdag 30-10-2025 om 12:48
Middenweg, 1505RK Zaandam

Binnenkijken bij
Woensdag 29-10-2025
Narvastraat 18, 1506ND Zaandam

Direct een e-mail ontvangen bij nieuwe meldingen in deze regio?

Meld je dan GRATIS aan voor de Oozo Alert service voor Havenbuurt

Instellen

Meer nieuws in Havenbuurt

Weten hoe eenvoudig het is om af te vallen? Zonder pillen en smeersels en zonder je in het zweet te werken!
Kijk op eenvoudig-afvallen.nl

© 2012 - 2025 OOZO.nl - info@oozo.nl - Gegevens verwijderen? | Disclaimer | Privacy statement