Woning Tolstoistraat 8 Zaandam

Tolstoistraat 8, 1506RT Zaandam

Ontvang updates voor Russische buurt

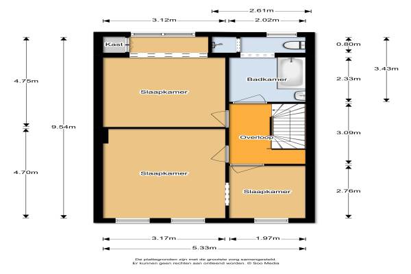
Het adres van deze woning uit 1910 is Tolstoistraat 8 te Zaandam. Het pand heeft een oppervlakte van 101m² en een perceeloppervlakte van 148m² en heeft 4 kamers kamers waarvan 3 slaapkamers. De geschatte waarde van deze woning is € 210.000.

Bekijk alle woningen in Russische buurt

Gegevens van Eengezinswoning, 2-onder-1-kapwoning

Bouwjaar
1910
Geschatte waarde
€ 210.000
Oppervlakte
101 m2
Inhoud
380 m3
Aantal kamers
4 kamers
Slaapkamers
3
Badkamers
1 badkamer en 1 apart toilet
Soort bouw
Bestaande bouw
Eigendomssituatie
Volle eigendom
Ligging
In centrum en in woonwijk
Tuin
Achtertuin
Achtertuin
87 m² (14,5m diep en 6m breed)

Voorzieningen in de buurt

Boodschappen0,2 km
Grote supermarkt0,2 km
Cafetaria0,2 km
Restaurant0,2 km
Huisarts0,8 km
Ziekenhuis2,5 km
Kinderdagverblijf0,3 km
BSO0,3 km
Alle voorzieningen in Russische buurt

Binnenkijken bij Tolstoistraat 8 te Zaandam

Meer meldingen in deze omgeving

112 melding
Donderdag 12-2-2026 om 11:52
Gedempte Gracht, Zaandam

112 melding
Donderdag 12-2-2026 om 11:52
Gedempte Gracht, Zaandam

112 melding
Donderdag 12-2-2026 om 11:38
Houthavenkade, Zaandam

112 melding
Woensdag 11-2-2026 om 01:22
Menschikoffstraat, Zaandam

Binnenkijken bij
Woensdag 11-2-2026
Czaar Peterstraat 9D, 1506SK Zaandam

Binnenkijken bij
Woensdag 11-2-2026
Hogendijk 30A, 1506AH Zaandam

112 melding
Woensdag 11-2-2026 om 00:04
Menschikoffstraat, Zaandam

112 melding
Dinsdag 10-2-2026 om 22:08
Hogendijk, Zaandam

Direct een e-mail ontvangen bij nieuwe meldingen in deze regio?

Meld je dan GRATIS aan voor de Oozo Alert service voor Russische buurt

Instellen

Meer nieuws in Russische buurt

Weten hoe eenvoudig het is om af te vallen? Zonder pillen en smeersels en zonder je in het zweet te werken!
Kijk op eenvoudig-afvallen.nl

© 2012 - 2026 OOZO.nl - info@oozo.nl - Gegevens verwijderen? | Disclaimer | Privacy statement