Woning Schoenerstraat 37 Zaandam

Schoenerstraat 37, 1503BA Zaandam

Ontvang updates voor Peldersveld

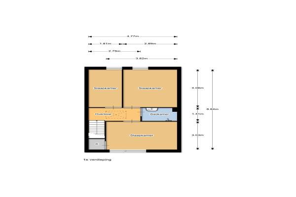
Het adres van deze woning uit 1969 is Schoenerstraat 37 te Zaandam. Het pand heeft een oppervlakte van 82m² en een perceeloppervlakte van 90m² en heeft 5 kamers kamers waarvan 3 slaapkamers. De geschatte waarde van deze woning is € 230.000.

Bekijk alle woningen in Peldersveld

Gegevens van Eengezinswoning, tussenwoning

Bouwjaar
1969
Geschatte waarde
€ 230.000
Oppervlakte
82 m2
Inhoud
240 m3
Aantal kamers
5 kamers
Slaapkamers
3
Badkamers
1 badkamer en 1 apart toilet
Soort bouw
Bestaande bouw
Eigendomssituatie
Volle eigendom
Ligging
Aan rustige weg en in woonwijk
Tuin
Achtertuin en voortuin
Achtertuin
19 m² (4m diep en 4,78m breed)

Voorzieningen in de buurt

Boodschappen0,5 km
Grote supermarkt0,5 km
Cafetaria0,8 km
Restaurant0,4 km
Huisarts0,8 km
Ziekenhuis2,1 km
Kinderdagverblijf0,3 km
BSO0,3 km
Alle voorzieningen in Peldersveld

Binnenkijken bij Schoenerstraat 37 te Zaandam

Meer meldingen in deze omgeving

112 melding
Vrijdag 7-11-2025 om 10:42
Brandaris, Zaandam

112 melding
Vrijdag 7-11-2025 om 07:11
Brigantijnstraat, Zaandam

112 melding
Vrijdag 7-11-2025 om 07:03
Brigantijnstraat, Zaandam

112 melding
Vrijdag 7-11-2025 om 07:03
Brigantijnstraat, Zaandam

112 melding
Vrijdag 7-11-2025 om 01:05
Brandaris, Zaandam

112 melding
Donderdag 6-11-2025 om 19:15
Brandaris, Zaandam

112 melding
Donderdag 6-11-2025 om 12:16
Gibraltar, 1503BM Zaandam

112 melding
Woensdag 5-11-2025 om 15:36
Brigantijnstraat, Zaandam

Direct een e-mail ontvangen bij nieuwe meldingen in deze regio?

Meld je dan GRATIS aan voor de Oozo Alert service voor Peldersveld

Instellen

Meer nieuws in Peldersveld

Weten hoe eenvoudig het is om af te vallen? Zonder pillen en smeersels en zonder je in het zweet te werken!
Kijk op eenvoudig-afvallen.nl

© 2012 - 2025 OOZO.nl - info@oozo.nl - Gegevens verwijderen? | Disclaimer | Privacy statement