Woning Dageraadstraat 29 Zaandam

Dageraadstraat 29, 1502NS Zaandam

Ontvang updates voor Rosmolenbuurt

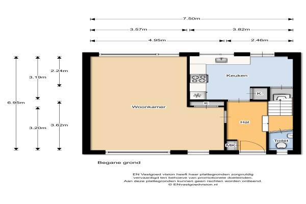
Het adres van deze woning uit 1958 is Dageraadstraat 29 te Zaandam. Het pand heeft een oppervlakte van 104m² en een perceeloppervlakte van 169m² en heeft 5 kamers kamers waarvan 4 slaapkamers. De geschatte waarde van deze woning is € 400.000.

Bekijk alle woningen in Rosmolenbuurt

Gegevens van Eengezinswoning, tussenwoning

Bouwjaar
1958
Geschatte waarde
€ 400.000
Oppervlakte
104 m2
Inhoud
383 m3
Aantal kamers
5 kamers
Slaapkamers
4
Badkamers
1 badkamer en 1 apart toilet
Soort bouw
Bestaande bouw
Eigendomssituatie
Volle eigendom
Ligging
Aan rustige weg en in woonwijk
Tuin
Achtertuin en voortuin
Achtertuin
56 m² (8,00 meter diep en 7,00 meter breed)

Voorzieningen in de buurt

Boodschappen0,3 km
Grote supermarkt0,4 km
Cafetaria0,3 km
Restaurant0,4 km
Huisarts0,5 km
Ziekenhuis1,2 km
Kinderdagverblijf0,4 km
BSO0,7 km
Alle voorzieningen in Rosmolenbuurt

Binnenkijken bij Dageraadstraat 29 te Zaandam

Meer meldingen in deze omgeving

112 melding
Dinsdag 21-4-2026 om 23:54
Koningin Julianaplein, 1502DV Zaandam

112 melding
Dinsdag 21-4-2026 om 18:40
Koningin Julianaplein, 1502DV Zaandam

112 melding
Dinsdag 21-4-2026 om 09:30
Koningin Julianaplein, 1502DV Zaandam

112 melding
Dinsdag 21-4-2026 om 08:12
Koningin Julianaplein, 1502DV Zaandam

112 melding
Dinsdag 21-4-2026 om 00:25
Koningin Julianaplein, 1502DV Zaandam

112 melding
Maandag 20-4-2026 om 14:42
Govert 't Hoenstraat, Zaandam

112 melding
Maandag 20-4-2026 om 14:42
Govert 't Hoenstraat, Zaandam

112 melding
Maandag 20-4-2026 om 08:11
Pennemes, Zaandam

Direct een e-mail ontvangen bij nieuwe meldingen in deze regio?

Meld je dan GRATIS aan voor de Oozo Alert service voor Rosmolenbuurt

Instellen

Meer nieuws in Rosmolenbuurt

Weten hoe eenvoudig het is om af te vallen? Zonder pillen en smeersels en zonder je in het zweet te werken!
Kijk op eenvoudig-afvallen.nl

© 2012 - 2026 OOZO.nl - info@oozo.nl - Gegevens verwijderen? | Disclaimer | Privacy statement