Woning Heijermansstraat 135 Zaandam

Heijermansstraat 135, 1502DJ Zaandam

Ontvang updates voor Rosmolenbuurt

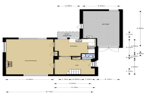
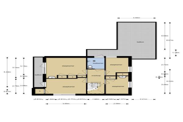
Het adres van deze woning uit 1960 is Heijermansstraat 135 te Zaandam. Het pand heeft een oppervlakte van 106m² en een perceeloppervlakte van 345m² en heeft 5 kamers kamers waarvan 4 slaapkamers. De geschatte waarde van deze woning is € 425.000.

Bekijk alle woningen in Rosmolenbuurt

Gegevens van Villa, vrijstaande woning

Bouwjaar
1960
Geschatte waarde
€ 425.000
Oppervlakte
106 m2
Inhoud
462 m3
Aantal kamers
5 kamers
Slaapkamers
4
Badkamers
1 badkamer en 1 apart toilet
Soort bouw
Bestaande bouw
Eigendomssituatie
Volle eigendom
Ligging
In woonwijk
Tuin
Achtertuin, voortuin en zijtuin
Achtertuin
145 m² (10m diep en 14,5m breed)

Voorzieningen in de buurt

Boodschappen0,3 km
Grote supermarkt0,4 km
Cafetaria0,3 km
Restaurant0,4 km
Huisarts0,5 km
Ziekenhuis1,2 km
Kinderdagverblijf0,4 km
BSO0,7 km
Alle voorzieningen in Rosmolenbuurt

Binnenkijken bij Heijermansstraat 135 te Zaandam

Meer meldingen in deze omgeving

112 melding
Maandag 4-5-2026 om 23:59
Koningin Julianaplein, 1502DV Zaandam

112 melding
Maandag 4-5-2026 om 10:05
Heijermansstraat, Zaandam

112 melding
Maandag 4-5-2026 om 07:19
Koningin Julianaplein, 1502DV Zaandam

112 melding
Zondag 3-5-2026 om 19:18
Jan Heyndricksz Cardinaelstraat, Zaandam

112 melding
Zaterdag 2-5-2026 om 22:39
Koningin Julianaplein, 1502DV Zaandam

112 melding
Zaterdag 2-5-2026 om 15:40
De Steven, 1502BR Zaandam

112 melding
Zaterdag 2-5-2026 om 13:56
Heijermansstraat, Zaandam

112 melding
Zaterdag 2-5-2026 om 11:02
Heijermansstraat, Zaandam

Direct een e-mail ontvangen bij nieuwe meldingen in deze regio?

Meld je dan GRATIS aan voor de Oozo Alert service voor Rosmolenbuurt

Instellen

Meer nieuws in Rosmolenbuurt

Weten hoe eenvoudig het is om af te vallen? Zonder pillen en smeersels en zonder je in het zweet te werken!
Kijk op eenvoudig-afvallen.nl

© 2012 - 2026 OOZO.nl - info@oozo.nl - Gegevens verwijderen? | Disclaimer | Privacy statement