Woning Zwaluwstraat 36 Wormerveer

Zwaluwstraat 36, 1521XV Wormerveer

Ontvang updates voor Wormerveer Noord

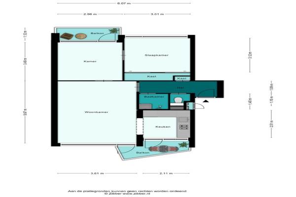
Het adres van deze woning uit 1965 is Zwaluwstraat 36 te Wormerveer. Het pand heeft een oppervlakte van 58m² en heeft 3 kamers kamers waarvan 2 slaapkamers. De geschatte waarde van deze woning is € 240.000.

Bekijk alle woningen in Wormerveer Noord

Gegevens van Appartement

Bouwjaar
1965
Geschatte waarde
€ 240.000
Oppervlakte
58 m2
Inhoud
190 m3
Aantal kamers
3 kamers
Slaapkamers
2
Badkamers
1 badkamer en 1 apart toilet
Soort bouw
Bestaande bouw
Eigendomssituatie
Volle eigendom
Ligging
Aan rustige weg en in woonwijk
Tuin
Balkon aanwezig

Voorzieningen in de buurt

Boodschappen0,5 km
Grote supermarkt0,4 km
Cafetaria0,5 km
Restaurant0,4 km
Huisarts1,1 km
Ziekenhuis3,4 km
Kinderdagverblijf0,5 km
BSO0,5 km
Alle voorzieningen in Wormerveer Noord

Binnenkijken bij Zwaluwstraat 36 te Wormerveer

Meer meldingen in deze omgeving

Binnenkijken bij
Zaterdag 20-12-2025
Steijnstraat 2, 1521GA Wormerveer

Binnenkijken bij
Zaterdag 20-12-2025
Krommenieërpad 178, 1521HB Wormerveer

112 melding
Vrijdag 19-12-2025 om 20:28
Westerstraat, Wormerveer

112 melding
Vrijdag 19-12-2025 om 10:40
Cor Bruijnweg, Wormerveer

112 melding
Vrijdag 19-12-2025 om 10:40
Cor Bruijnweg, Wormerveer

112 melding
Donderdag 18-12-2025 om 13:38
Paul Krugerstraat, Wormerveer

112 melding
Woensdag 17-12-2025 om 12:38
Adama van Scheltemastraat, 1521MN Wormerveer

112 melding
Woensdag 17-12-2025 om 11:59
Marktplein, 1521HS Wormerveer

Direct een e-mail ontvangen bij nieuwe meldingen in deze regio?

Meld je dan GRATIS aan voor de Oozo Alert service voor Wormerveer Noord

Instellen

Meer nieuws in Wormerveer Noord

Weten hoe eenvoudig het is om af te vallen? Zonder pillen en smeersels en zonder je in het zweet te werken!
Kijk op eenvoudig-afvallen.nl

© 2012 - 2025 OOZO.nl - info@oozo.nl - Gegevens verwijderen? | Disclaimer | Privacy statement