Woning Paul Krugerstraat 30 Wormerveer

Paul Krugerstraat 30, 1521EJ Wormerveer

Ontvang updates voor Wormerveer Noord

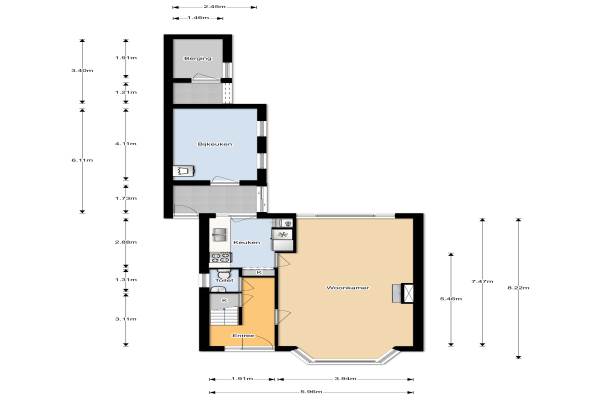
Het adres van deze woning uit 1934 is Paul Krugerstraat 30 te Wormerveer. Het pand heeft een oppervlakte van 108m² en een perceeloppervlakte van 161m² en heeft 4 kamers kamers waarvan 3 slaapkamers. De geschatte waarde van deze woning is € 250.000.

Bekijk alle woningen in Wormerveer Noord

Gegevens van Eengezinswoning, vrijstaande woning

Bouwjaar
1934
Geschatte waarde
€ 250.000
Oppervlakte
108 m2
Inhoud
409 m3
Aantal kamers
4 kamers
Slaapkamers
3
Badkamers
1 badkamer en 1 apart toilet
Soort bouw
Bestaande bouw
Eigendomssituatie
Volle eigendom
Ligging
Aan rustige weg en in woonwijk
Tuin
Achtertuin en voortuin
Achtertuin
41 m² (10,46m diep en 3,94m breed)

Voorzieningen in de buurt

Boodschappen0,5 km
Grote supermarkt0,4 km
Cafetaria0,5 km
Restaurant0,4 km
Huisarts1,1 km
Ziekenhuis3,4 km
Kinderdagverblijf0,5 km
BSO0,5 km
Alle voorzieningen in Wormerveer Noord

Binnenkijken bij Paul Krugerstraat 30 te Wormerveer

Meer meldingen in deze omgeving

112 melding
Dinsdag 20-1-2026 om 16:43
Vinkenstraat, Wormerveer

112 melding
Maandag 19-1-2026 om 18:19
1e Kruisstraat, 1521VP Wormerveer

112 melding
Maandag 19-1-2026 om 16:55
Koolmeeskade, 1521XX Wormerveer

112 melding
Maandag 19-1-2026 om 13:31
Steijnstraat, 1521GA Wormerveer

112 melding
Maandag 19-1-2026 om 13:20
Steijnstraat, 1521GA Wormerveer

112 melding
Maandag 19-1-2026 om 08:48
Zaanstroom, Wormerveer

112 melding
Zondag 18-1-2026 om 18:46
De Wetstraat, 1521GG Wormerveer

112 melding
Zondag 18-1-2026 om 05:49
1e Kruisstraat, 1521VP Wormerveer

Direct een e-mail ontvangen bij nieuwe meldingen in deze regio?

Meld je dan GRATIS aan voor de Oozo Alert service voor Wormerveer Noord

Instellen

Meer nieuws in Wormerveer Noord

Weten hoe eenvoudig het is om af te vallen? Zonder pillen en smeersels en zonder je in het zweet te werken!
Kijk op eenvoudig-afvallen.nl

© 2012 - 2026 OOZO.nl - info@oozo.nl - Gegevens verwijderen? | Disclaimer | Privacy statement