Woning Antillenstraat 5 Wormerveer

Antillenstraat 5, 1521AT Wormerveer

Ontvang updates voor Wormerveer Zuid

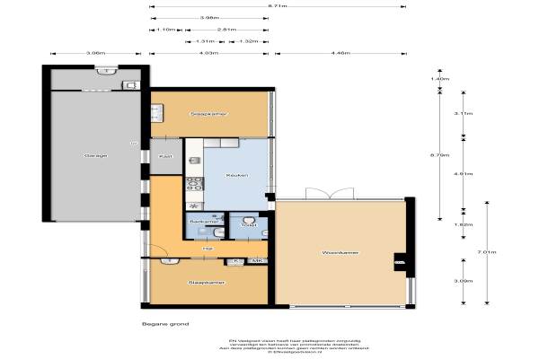
Het adres van deze woning uit 1960 is Antillenstraat 5 te Wormerveer. Het pand heeft een oppervlakte van 91m² en een perceeloppervlakte van 337m² en heeft 3 kamers kamers waarvan 2 slaapkamers. De geschatte waarde van deze woning is € 450.000.

Bekijk alle woningen in Wormerveer Zuid

Gegevens van Bungalow, vrijstaande woning

Bouwjaar
1960
Geschatte waarde
€ 450.000
Oppervlakte
91 m2
Inhoud
343 m3
Aantal kamers
3 kamers
Slaapkamers
2
Badkamers
1 badkamer en 1 apart toilet
Soort bouw
Bestaande bouw
Eigendomssituatie
Volle eigendom
Ligging
Aan water, aan rustige weg, vrij uitzicht, open ligging en aan vaarwater
Tuin
Achtertuin, voortuin en zijtuin
Achtertuin
76 m² (8m diep en 9,5m breed)

Voorzieningen in de buurt

Boodschappen0,3 km
Grote supermarkt0,6 km
Cafetaria0,3 km
Restaurant0,2 km
Huisarts0,8 km
Ziekenhuis4,3 km
Kinderdagverblijf1,2 km
BSO0,4 km
Alle voorzieningen in Wormerveer Zuid

Binnenkijken bij Antillenstraat 5 te Wormerveer

Meer meldingen in deze omgeving

112 melding
Donderdag 16-4-2026 om 07:53
De Zetter, Wormerveer

Binnenkijken bij
Donderdag 16-4-2026
De Zetter 36, 1521CW Wormerveer

Binnenkijken bij
Donderdag 16-4-2026
Vestaplein 59, 1521AN Wormerveer

Nieuw bedrijf
April 2026
Vestaplein 16, 1521AN Wormerveer

112 melding
Dinsdag 14-4-2026 om 07:29
Goudastraat, Wormerveer

112 melding
Dinsdag 14-4-2026 om 04:41
Wandelweg, Wormerveer

112 melding
Maandag 13-4-2026 om 11:15
Billitonkade, Wormerveer

Binnenkijken bij
Maandag 13-4-2026
Celebesstraat 58, 1521BV Wormerveer

Direct een e-mail ontvangen bij nieuwe meldingen in deze regio?

Meld je dan GRATIS aan voor de Oozo Alert service voor Wormerveer Zuid

Instellen

Meer nieuws in Wormerveer Zuid

Weten hoe eenvoudig het is om af te vallen? Zonder pillen en smeersels en zonder je in het zweet te werken!
Kijk op eenvoudig-afvallen.nl

© 2012 - 2026 OOZO.nl - info@oozo.nl - Gegevens verwijderen? | Disclaimer | Privacy statement