Woning Javastraat 56 Wormerveer

Javastraat 56, 1521CG Wormerveer

Ontvang updates voor Wormerveer Zuid

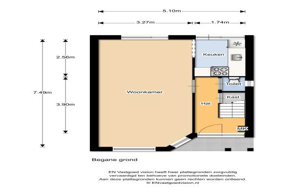
Het adres van deze woning uit 1925 is Javastraat 56 te Wormerveer. Het pand heeft een oppervlakte van 74m² en een perceeloppervlakte van 91m² en heeft 5 kamers kamers waarvan 3 slaapkamers. De geschatte waarde van deze woning is € 225.000.

Bekijk alle woningen in Wormerveer Zuid

Gegevens van Eengezinswoning, vrijstaande woning

Bouwjaar
1925
Geschatte waarde
€ 225.000
Oppervlakte
74 m2
Inhoud
282 m3
Aantal kamers
5 kamers
Slaapkamers
3
Badkamers
1 badkamer en 1 apart toilet
Soort bouw
Bestaande bouw
Eigendomssituatie
Volle eigendom
Ligging
In woonwijk
Tuin
Achtertuin
Achtertuin
42 m² (7m diep en 6m breed)

Voorzieningen in de buurt

Boodschappen0,3 km
Grote supermarkt0,6 km
Cafetaria0,3 km
Restaurant0,2 km
Huisarts0,8 km
Ziekenhuis4,3 km
Kinderdagverblijf1,2 km
BSO0,4 km
Alle voorzieningen in Wormerveer Zuid

Binnenkijken bij Javastraat 56 te Wormerveer

Meer meldingen in deze omgeving

Binnenkijken bij
Zondag 21-12-2025
Wandelweg 58R, 1521AH Wormerveer

Binnenkijken bij
Zaterdag 20-12-2025
Riouwstraat 54, 1521SG Wormerveer

112 melding
Vrijdag 19-12-2025 om 22:07
Celebesstraat, Wormerveer

112 melding
Donderdag 18-12-2025 om 18:11
Wandelweg, Wormerveer

112 melding
Donderdag 18-12-2025 om 16:05
Warmoesstraat, Wormerveer

112 melding
Woensdag 17-12-2025 om 14:10
Warmoesstraat, Wormerveer

112 melding
Dinsdag 16-12-2025 om 21:47
Jan Waalstraat, 1521TZ Wormerveer

112 melding
Dinsdag 16-12-2025 om 10:33
Plein 13, 1521AP Wormerveer

Direct een e-mail ontvangen bij nieuwe meldingen in deze regio?

Meld je dan GRATIS aan voor de Oozo Alert service voor Wormerveer Zuid

Instellen

Meer nieuws in Wormerveer Zuid

Weten hoe eenvoudig het is om af te vallen? Zonder pillen en smeersels en zonder je in het zweet te werken!
Kijk op eenvoudig-afvallen.nl

© 2012 - 2025 OOZO.nl - info@oozo.nl - Gegevens verwijderen? | Disclaimer | Privacy statement