Woning Zeemansstraat 79R Zaandam

Zeemansstraat 79R, 1506CT Zaandam

Ontvang updates voor Oud West

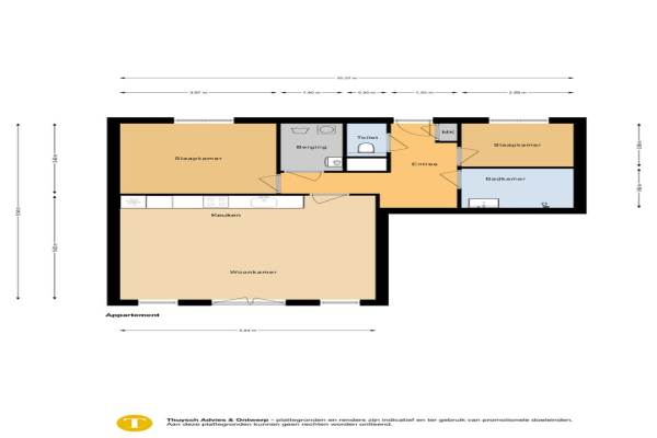
Het adres van deze woning uit 2025 is Zeemansstraat 79R te Zaandam. Het pand heeft een oppervlakte van 76m² en heeft 3 kamers kamers waarvan 2 slaapkamers. De geschatte waarde van deze woning is € 459.000.

Bekijk alle woningen in Oud West

Gegevens van Galerijflat (appartement)

Bouwjaar
2025
Geschatte waarde
€ 459.000
Oppervlakte
76 m2
Inhoud
246 m3
Aantal kamers
3 kamers
Slaapkamers
2
Soort bouw
Bestaande bouw
Eigendomssituatie
Volle eigendom

Voorzieningen in de buurt

Boodschappen0,3 km
Grote supermarkt0,4 km
Cafetaria0,3 km
Restaurant0,3 km
Huisarts1,0 km
Ziekenhuis1,8 km
Kinderdagverblijf0,3 km
BSO0,4 km
Alle voorzieningen in Oud West

Binnenkijken bij Zeemansstraat 79R te Zaandam

Meer meldingen in deze omgeving

Binnenkijken bij
Dinsdag 11-11-2025
Vinkenstraat 40B, 1506CM Zaandam

Binnenkijken bij
Dinsdag 11-11-2025
Vinkenstraat 28, 1506CM Zaandam

112 melding
Dinsdag 11-11-2025 om 12:09
Vaartkade, 1506DZ Zaandam

Binnenkijken bij
Dinsdag 11-11-2025
Ooievaarstraat 52, 1506XN Zaandam

Binnenkijken bij
Dinsdag 11-11-2025
Zeemansstraat 80A, 1506CW Zaandam

Binnenkijken bij
Dinsdag 11-11-2025
Zeemansstraat 1C, 1506CS Zaandam

Binnenkijken bij
Dinsdag 11-11-2025
Zeemansstraat 79Y, 1506CT Zaandam

Binnenkijken bij
Dinsdag 11-11-2025
Zeemansstraat 79B, 1506CT Zaandam

Direct een e-mail ontvangen bij nieuwe meldingen in deze regio?

Meld je dan GRATIS aan voor de Oozo Alert service voor Oud West

Instellen

Meer nieuws in Oud West

Weten hoe eenvoudig het is om af te vallen? Zonder pillen en smeersels en zonder je in het zweet te werken!
Kijk op eenvoudig-afvallen.nl

© 2012 - 2025 OOZO.nl - info@oozo.nl - Gegevens verwijderen? | Disclaimer | Privacy statement