Woning Zeemansstraat 80 Zaandam

Zeemansstraat 80, 1506CW Zaandam

Ontvang updates voor Oud West

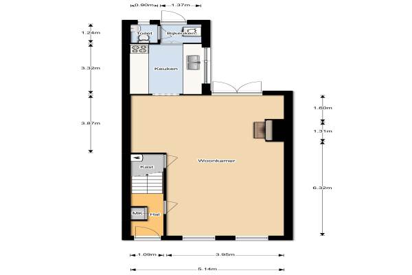
Het adres van deze woning uit 1891 is Zeemansstraat 80 te Zaandam. Het pand heeft een oppervlakte van 95m² en een perceeloppervlakte van 152m² en heeft 4 kamers kamers waarvan 3 slaapkamers. De geschatte waarde van deze woning is € 125.000.

Bekijk alle woningen in Oud West

Gegevens van Eengezinswoning, vrijstaande woning

Bouwjaar
1891
Geschatte waarde
€ 125.000
Oppervlakte
95 m2
Inhoud
318 m3
Aantal kamers
4 kamers
Slaapkamers
3
Badkamers
1 badkamer en 1 apart toilet
Soort bouw
Bestaande bouw
Eigendomssituatie
Volle eigendom
Ligging
In centrum
Tuin
Achtertuin
Achtertuin
45 m² (9m diep en 5m breed)

Voorzieningen in de buurt

Boodschappen0,3 km
Grote supermarkt0,4 km
Cafetaria0,3 km
Restaurant0,3 km
Huisarts1,0 km
Ziekenhuis1,8 km
Kinderdagverblijf0,3 km
BSO0,4 km
Alle voorzieningen in Oud West

Binnenkijken bij Zeemansstraat 80 te Zaandam

Meer meldingen in deze omgeving

112 melding
Woensdag 12-11-2025 om 17:53
Stationsstraat, Zaandam

Onroerend goed
Dinsdag 11-11-2025
Westzijde 73, 1506EC Zaandam

Binnenkijken bij
Dinsdag 11-11-2025
Vinkenstraat 40B, 1506CM Zaandam

Binnenkijken bij
Dinsdag 11-11-2025
Vinkenstraat 28, 1506CM Zaandam

112 melding
Dinsdag 11-11-2025 om 12:09
Vaartkade, 1506DZ Zaandam

Binnenkijken bij
Dinsdag 11-11-2025
Ooievaarstraat 52, 1506XN Zaandam

Binnenkijken bij
Dinsdag 11-11-2025
Zeemansstraat 80A, 1506CW Zaandam

Binnenkijken bij
Dinsdag 11-11-2025
Zeemansstraat 1C, 1506CS Zaandam

Direct een e-mail ontvangen bij nieuwe meldingen in deze regio?

Meld je dan GRATIS aan voor de Oozo Alert service voor Oud West

Instellen

Meer nieuws in Oud West

Weten hoe eenvoudig het is om af te vallen? Zonder pillen en smeersels en zonder je in het zweet te werken!
Kijk op eenvoudig-afvallen.nl

© 2012 - 2025 OOZO.nl - info@oozo.nl - Gegevens verwijderen? | Disclaimer | Privacy statement