Woning Burgemeester van de Stadtstraat 86 Zaandam

Burgemeester van de Stadtstraat 86, 1501SH Zaandam

Ontvang updates voor Burgemeestersbuurt

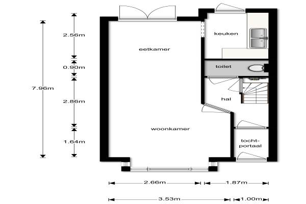
Het adres van deze woning uit 1939 is Burgemeester van de Stadtstraat 86 te Zaandam. Het pand heeft een oppervlakte van 109m² en een perceeloppervlakte van 121m² en heeft 5 kamers kamers waarvan 4 slaapkamers. De geschatte waarde van deze woning is € 225.000.

Bekijk alle woningen in Burgemeestersbuurt

Gegevens van Eengezinswoning, hoekwoning

Bouwjaar
1939
Geschatte waarde
€ 225.000
Oppervlakte
109 m2
Inhoud
411 m3
Aantal kamers
5 kamers
Slaapkamers
4
Badkamers
1 badkamer en 1 apart toilet
Soort bouw
Bestaande bouw
Eigendomssituatie
Volle eigendom
Ligging
Aan rustige weg en in woonwijk
Tuin
Achtertuin en voortuin
Achtertuin
50 m² (10m diep en 5m breed)

Voorzieningen in de buurt

Boodschappen0,3 km
Grote supermarkt0,5 km
Cafetaria0,3 km
Restaurant0,4 km
Huisarts0,7 km
Ziekenhuis2,2 km
Kinderdagverblijf0,4 km
BSO0,3 km
Alle voorzieningen in Burgemeestersbuurt

Binnenkijken bij Burgemeester van de Stadtstraat 86 te Zaandam

Meer meldingen in deze omgeving

Binnenkijken bij
Woensdag 11-2-2026
Zuiderkerkstraat 45, 1501NE Zaandam

112 melding
Dinsdag 10-2-2026 om 16:13
Jonge Arnoldusstraat, Zaandam

112 melding
Dinsdag 10-2-2026 om 09:13
De Wetstraat, Zaandam

112 melding
Maandag 9-2-2026 om 05:22
Burgemeester Smitstraat, Zaandam

112 melding
Zondag 8-2-2026 om 06:47
Jonge Arnoldusstraat, Zaandam

112 melding
Zaterdag 7-2-2026 om 18:29
Kepplerstraat, Zaandam

112 melding
Zaterdag 7-2-2026 om 13:21
Jacobus Gorisstraat, Zaandam

Binnenkijken bij
Zaterdag 7-2-2026
De Wetstraat 66, 1501RK Zaandam

Direct een e-mail ontvangen bij nieuwe meldingen in deze regio?

Meld je dan GRATIS aan voor de Oozo Alert service voor Burgemeestersbuurt

Instellen

Meer nieuws in Burgemeestersbuurt

Weten hoe eenvoudig het is om af te vallen? Zonder pillen en smeersels en zonder je in het zweet te werken!
Kijk op eenvoudig-afvallen.nl

© 2012 - 2026 OOZO.nl - info@oozo.nl - Gegevens verwijderen? | Disclaimer | Privacy statement