Woning Beemstraat 44 Gameren

Beemstraat 44, 5311AD Gameren

Ontvang updates voor Gameren

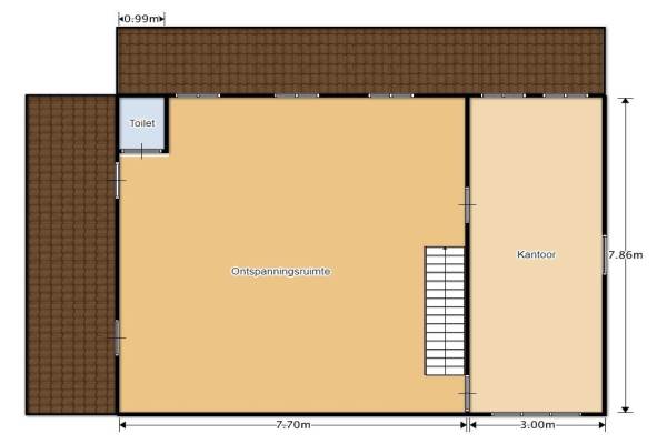
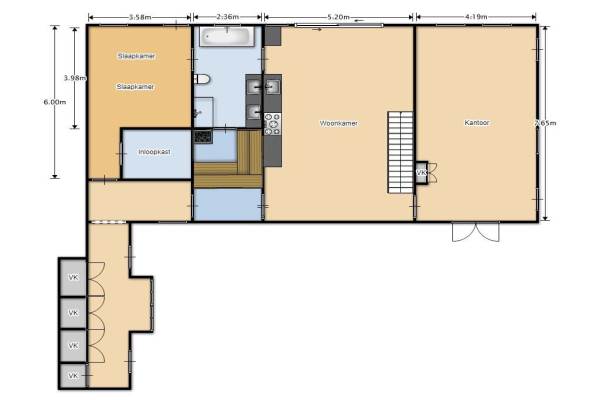
Het adres van deze woning uit 1870 is Beemstraat 44 te Gameren. Het pand heeft een oppervlakte van 409m² en een perceeloppervlakte van 2m² en heeft 12 kamers kamers waarvan 7 slaapkamers. De geschatte waarde van deze woning is € 1.995.000.

Bekijk alle woningen in Gameren

Gegevens van Woonboerderij, vrijstaande woning (dijkwoning)

Bouwjaar
1870
Geschatte waarde
€ 1.995.000
Oppervlakte
409 m2
Inhoud
1 m3
Aantal kamers
12 kamers
Slaapkamers
7
Badkamers
2 badkamers en 2 aparte toiletten
Soort bouw
Bestaande bouw
Eigendomssituatie
Volle eigendom
Tuin
Achtertuin, patio/atrium en zijtuin
Achtertuin
1.344 m² (42,00 meter diep en 32,00 meter breed)

Voorzieningen in de buurt

Boodschappen0,5 km
Grote supermarkt1,1 km
Cafetaria2,6 km
Restaurant0,9 km
Huisarts0,8 km
Ziekenhuis3,7 km
Kinderdagverblijf0,7 km
BSO3,3 km
Alle voorzieningen in Gameren

Binnenkijken bij Beemstraat 44 te Gameren

Meer meldingen in deze omgeving

Binnenkijken bij
Dinsdag 5-5-2026
Rietkamp 19, 5311GX Gameren

Binnenkijken bij
Dinsdag 5-5-2026
Gratenbogerd 22, 5311GB Gameren

Binnenkijken bij
Dinsdag 5-5-2026
Ridderstraat 17A, 5311CK Gameren

Nieuw bedrijf
Mei 2026
Ridderstraat 36, 5311CN Gameren

112 melding
Vrijdag 17-4-2026 om 14:31
Gameren

Binnenkijken bij
Donderdag 16-4-2026
Johannis van Rijswijkstr 8, 5311EB Gameren

112 melding
Maandag 13-4-2026 om 13:54
Gameren

112 melding
Maandag 13-4-2026 om 13:52
Waalbandijk, Gameren

Direct een e-mail ontvangen bij nieuwe meldingen in deze regio?

Meld je dan GRATIS aan voor de Oozo Alert service voor Gameren

Instellen

Meer nieuws in Gameren

Weten hoe eenvoudig het is om af te vallen? Zonder pillen en smeersels en zonder je in het zweet te werken!
Kijk op eenvoudig-afvallen.nl

© 2012 - 2026 OOZO.nl - info@oozo.nl - Gegevens verwijderen? | Disclaimer | Privacy statement