Woning Lekdijk 32 Ameide

Lekdijk 32, 4233CM Ameide

Ontvang updates voor Ameide Kern

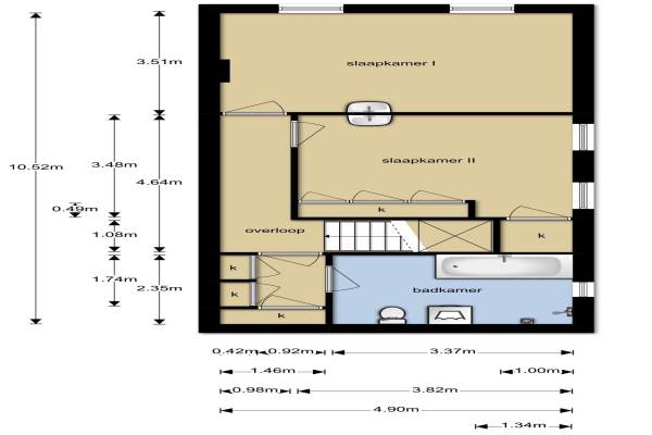
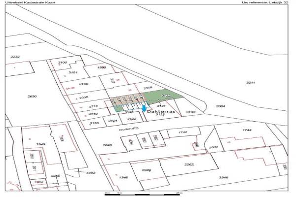
Het adres van deze woning uit 1970 is Lekdijk 32 te Ameide. Het pand heeft een oppervlakte van 155m² en een perceeloppervlakte van 152m² en heeft 7 kamers kamers waarvan 2 slaapkamers. De geschatte waarde van deze woning is € 235.000.

Bekijk alle woningen in Ameide Kern

Gegevens van Eengezinswoning, hoekwoning (dijkwoning)

Bouwjaar
1970
Geschatte waarde
€ 235.000
Oppervlakte
155 m2
Inhoud
554 m3
Aantal kamers
7 kamers
Slaapkamers
2
Badkamers
1 apart toilet
Soort bouw
Bestaande bouw
Ligging
In centrum, vrij uitzicht, open ligging en aan vaarwater
Tuin
Voortuin en zonneterras

Voorzieningen in de buurt

Binnenkijken bij Lekdijk 32 te Ameide

Meer meldingen in deze omgeving

112 melding
Woensdag 1-10-2025 om 17:45
Prinses Marijkeweg, Ameide

112 melding
Vrijdag 19-9-2025 om 20:38
Prinses Marijkeweg, 4233HL Ameide

Binnenkijken bij
Vrijdag 19-9-2025
Hazelaarlaan 44, 4233HP Ameide

Binnenkijken bij
Vrijdag 19-9-2025
Prinsengracht 33, 4233ET Ameide

Binnenkijken bij
Vrijdag 19-9-2025
Molenstraat 10D, 4233ES Ameide

Nieuw bedrijf
September 2025
Iepenlaan 28, 4233HT Ameide

Nieuw bedrijf
September 2025
Meidoornlaan 67, 4233CR Ameide

Nieuw bedrijf
September 2025
De Zodeslagen 14A, 4233GK Ameide

Direct een e-mail ontvangen bij nieuwe meldingen in deze regio?

Meld je dan GRATIS aan voor de Oozo Alert service voor Ameide Kern

Instellen

Meer nieuws in Ameide Kern

Weten hoe eenvoudig het is om af te vallen? Zonder pillen en smeersels en zonder je in het zweet te werken!
Kijk op eenvoudig-afvallen.nl

© 2012 - 2025 OOZO.nl - info@oozo.nl - Gegevens verwijderen? | Disclaimer | Privacy statement