Woning Burgemeester Patijnlaan 77 Zeist

Burgemeester Patijnlaan 77, 3705CB Zeist

Ontvang updates voor Patijnpark

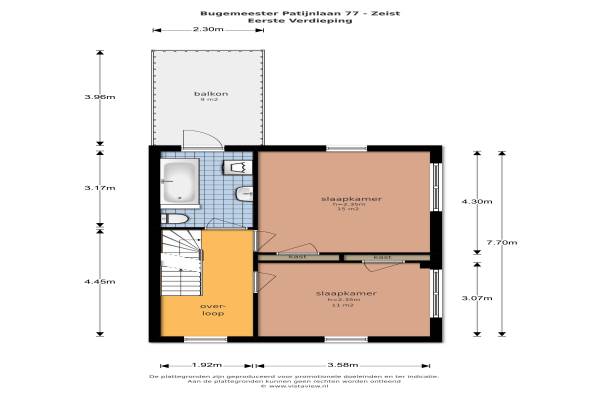
Het adres van deze woning uit 1928 is Burgemeester Patijnlaan 77 te Zeist. Het pand heeft een oppervlakte van 111m² en een perceeloppervlakte van 322m² en heeft 5 kamers kamers waarvan 4 slaapkamers. De geschatte waarde van deze woning is € 399.000.

Bekijk alle woningen in Patijnpark

Gegevens van Eengezinswoning, hoekwoning

Bouwjaar
1928
Geschatte waarde
€ 399.000
Oppervlakte
111 m2
Inhoud
408 m3
Aantal kamers
5 kamers
Slaapkamers
4
Badkamers
1 badkamer en 1 apart toilet
Soort bouw
Bestaande bouw
Eigendomssituatie
Volle eigendom
Ligging
Aan rustige weg en in woonwijk
Tuin
Achtertuin en voortuin
Achtertuin
217 m² (25,5m diep en 8,5m breed)

Voorzieningen in de buurt

Boodschappen0,5 km
Grote supermarkt0,7 km
Cafetaria0,4 km
Restaurant0,8 km
Huisarts0,7 km
Ziekenhuis2,3 km
Kinderdagverblijf0,3 km
BSO0,3 km
Alle voorzieningen in Patijnpark

Binnenkijken bij Burgemeester Patijnlaan 77 te Zeist

Meer meldingen in deze omgeving

Nieuw bedrijf
November 2025
Ter Braaklaan 30, 3705BW Zeist

Nieuw bedrijf
November 2025
Burgemeester Patijnlaan 24, 3705CE Zeist

Nieuw bedrijf
November 2025
Vestdijklaan 7, 3702TJ Zeist

Binnenkijken bij
Vrijdag 14-11-2025
Constantijn Huygenslaan 27, 3705SP Zeist

Binnenkijken bij
Vrijdag 14-11-2025
Egelinglaan 26A, 3705TD Zeist

Nieuw bedrijf
November 2025
Prof. Sproncklaan 31, 3705AB Zeist

Onroerend goed
Dinsdag 11-11-2025
Jacob van Lennepplein 3-A, 3705SZ Zeist

Binnenkijken bij
Dinsdag 11-11-2025
Jacob van Lennepplein 2, 3705SZ Zeist

Direct een e-mail ontvangen bij nieuwe meldingen in deze regio?

Meld je dan GRATIS aan voor de Oozo Alert service voor Patijnpark

Instellen

Meer nieuws in Patijnpark

Weten hoe eenvoudig het is om af te vallen? Zonder pillen en smeersels en zonder je in het zweet te werken!
Kijk op eenvoudig-afvallen.nl

© 2012 - 2025 OOZO.nl - info@oozo.nl - Gegevens verwijderen? | Disclaimer | Privacy statement