Woning Graaf Adolflaan 35 Zeist

Graaf Adolflaan 35, 3708XA Zeist

Ontvang updates voor Kerckebosch

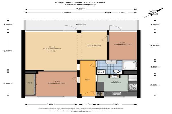
Het adres van deze woning uit 1962 is Graaf Adolflaan 35 te Zeist. Het pand heeft een oppervlakte van 72m² en heeft 3 kamers kamers waarvan 2 slaapkamers. De geschatte waarde van deze woning is € 199.500.

Bekijk alle woningen in Kerckebosch

Gegevens van Portiekflat (appartement)

Bouwjaar
1962
Geschatte waarde
€ 199.500
Oppervlakte
72 m2
Inhoud
228 m3
Aantal kamers
3 kamers
Slaapkamers
2
Badkamers
1 badkamer
Soort bouw
Bestaande bouw
Eigendomssituatie
Volle eigendom
Ligging
Aan rustige weg en in woonwijk

Voorzieningen in de buurt

Boodschappen0,6 km
Grote supermarkt0,7 km
Cafetaria0,7 km
Restaurant0,6 km
Huisarts0,6 km
Ziekenhuis2,1 km
Kinderdagverblijf0,6 km
BSO0,5 km
Alle voorzieningen in Kerckebosch

Binnenkijken bij Graaf Adolflaan 35 te Zeist

Meer meldingen in deze omgeving

Nieuw bedrijf
November 2025
Graaf Adolflaan 271, 3708XA Zeist

Binnenkijken bij
Dinsdag 25-11-2025
Anna Paulownalaan 170, 3708HR Zeist

Nieuw bedrijf
November 2025
Prinses Maximalaan 14, 3708ZV Zeist

Binnenkijken bij
Woensdag 19-11-2025
Anna Paulownalaan 152, 3708HP Zeist

Binnenkijken bij
Dinsdag 18-11-2025
Sophialaan 32, 3708HA Zeist

112 melding
Vrijdag 7-11-2025 om 10:14
Prinses Maximalaan, Zeist

Nieuw bedrijf
Oktober 2025
Prinses Marijkelaan 205, 3708DC Zeist

112 melding
Woensdag 29-10-2025 om 08:56
Prinses Marijkelaan, Zeist

Direct een e-mail ontvangen bij nieuwe meldingen in deze regio?

Meld je dan GRATIS aan voor de Oozo Alert service voor Kerckebosch

Instellen

Meer nieuws in Kerckebosch

Weten hoe eenvoudig het is om af te vallen? Zonder pillen en smeersels en zonder je in het zweet te werken!
Kijk op eenvoudig-afvallen.nl

© 2012 - 2025 OOZO.nl - info@oozo.nl - Gegevens verwijderen? | Disclaimer | Privacy statement