Woning Groenestraat 2 Lathum

Groenestraat 2, 6988BB Lathum

Ontvang updates voor Angerlo's Broek

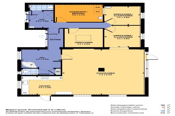
Het adres van deze woning uit 1976 is Groenestraat 2 te Lathum. Het pand heeft een oppervlakte van 185m² en een perceeloppervlakte van 8038m² en heeft 8 kamers kamers waarvan 6 slaapkamers. De geschatte waarde van deze woning is € 595.000.

Bekijk alle woningen in Angerlo's Broek

Gegevens van Villa, halfvrijstaande woning

Bouwjaar
1976
Geschatte waarde
€ 595.000
Oppervlakte
185 m2
Inhoud
600 m3
Aantal kamers
8 kamers
Slaapkamers
6
Badkamers
1 badkamer en 2 aparte toiletten
Soort bouw
Bestaande bouw
Eigendomssituatie
Volle eigendom
Ligging
Aan water, vrij uitzicht, beschutte ligging, open ligging, buiten bebouwde kom en landelijk gelegen
Tuin
Tuin rondom

Voorzieningen in de buurt

Boodschappen2,4 km
Grote supermarkt2,8 km
Cafetaria2,2 km
Restaurant3,1 km
Huisarts2,9 km
Ziekenhuis4,9 km
Kinderdagverblijf2,5 km
BSO2,6 km
Alle voorzieningen in Angerlo's Broek

Binnenkijken bij Groenestraat 2 te Lathum

Meer meldingen in deze omgeving

Nieuw bedrijf
December 2025
Zevenaarseweg 4, 6986CG Angerlo

112 melding
Maandag 24-11-2025 om 09:39
Groenestraat, 6988BB Lathum

112 melding
Vrijdag 21-11-2025 om 16:01
Groenestraat, 6988BB Lathum

112 melding
Dinsdag 11-11-2025 om 13:48
Tutenburgsestraat, 6987EH Giesbeek

112 melding
Zondag 9-11-2025 om 14:12
Tutenburgsestraat, 6987EH Giesbeek

Binnenkijken bij
Woensdag 29-10-2025
Groenestraat 6, 6988BB Lathum

112 melding
Dinsdag 28-10-2025 om 10:49
Bingerdenseweg, 6986 Angerlo

112 melding
Dinsdag 28-10-2025 om 09:29
Bingerdenseweg, 6986 Angerlo

Direct een e-mail ontvangen bij nieuwe meldingen in deze regio?

Meld je dan GRATIS aan voor de Oozo Alert service voor Angerlo's Broek

Instellen

Meer nieuws in Angerlo's Broek

Weten hoe eenvoudig het is om af te vallen? Zonder pillen en smeersels en zonder je in het zweet te werken!
Kijk op eenvoudig-afvallen.nl

© 2012 - 2025 OOZO.nl - info@oozo.nl - Gegevens verwijderen? | Disclaimer | Privacy statement