Woning Didamseweg 102 Zevenaar

Didamseweg 102, 6902PE Zevenaar

Ontvang updates voor De Horst

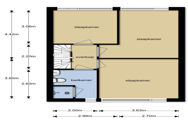
Het adres van deze woning uit 1969 is Didamseweg 102 te Zevenaar. Het pand heeft een oppervlakte van 117m² en een perceeloppervlakte van 156m² en heeft 5 kamers kamers waarvan 4 slaapkamers. De geschatte waarde van deze woning is € 167.500.

Bekijk alle woningen in De Horst

Gegevens van Eengezinswoning, tussenwoning

Bouwjaar
1969
Geschatte waarde
€ 167.500
Oppervlakte
117 m2
Inhoud
395 m3
Aantal kamers
5 kamers
Slaapkamers
4
Badkamers
1 apart toilet
Soort bouw
Bestaande bouw
Eigendomssituatie
Volle eigendom
Ligging
In woonwijk en vrij uitzicht
Tuin
Achtertuin
Achtertuin
48 m² (8m diep en 6m breed)

Voorzieningen in de buurt

Boodschappen1,2 km
Grote supermarkt1,3 km
Cafetaria0,8 km
Restaurant0,7 km
Huisarts0,9 km
Ziekenhuis1,9 km
Kinderdagverblijf0,4 km
BSO1,6 km
Alle voorzieningen in De Horst

Binnenkijken bij Didamseweg 102 te Zevenaar

Meer meldingen in deze omgeving

112 melding
Maandag 8-12-2025 om 09:39
Didamseweg, 6902PE Zevenaar

112 melding
Dinsdag 2-12-2025 om 08:29
Didamseweg, 6902PE Zevenaar

112 melding
Dinsdag 2-12-2025 om 08:29
Didamseweg, 6902PE Zevenaar

Nieuw bedrijf
November 2025
Schaapsdrift 186, 6902AN Zevenaar

112 melding
Donderdag 20-11-2025 om 16:01
Lammerenhof, 6902BA Zevenaar

112 melding
Donderdag 20-11-2025 om 16:01
Lammerenhof, 6902BA Zevenaar

112 melding
Donderdag 20-11-2025 om 15:50
Lammerenhof, 6902BA Zevenaar

112 melding
Woensdag 19-11-2025 om 11:42
Schaapsdrift, 6902AN Zevenaar

Direct een e-mail ontvangen bij nieuwe meldingen in deze regio?

Meld je dan GRATIS aan voor de Oozo Alert service voor De Horst

Instellen

Meer nieuws in De Horst

Weten hoe eenvoudig het is om af te vallen? Zonder pillen en smeersels en zonder je in het zweet te werken!
Kijk op eenvoudig-afvallen.nl

© 2012 - 2025 OOZO.nl - info@oozo.nl - Gegevens verwijderen? | Disclaimer | Privacy statement