Woning Zonegge 14 Zevenaar

Zonegge 14, 6903GJ Zevenaar

Ontvang updates voor Lentemorgen I

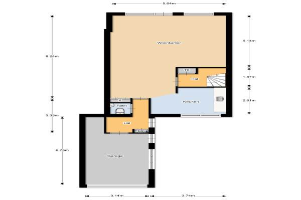
Het adres van deze woning uit 1974 is Zonegge 14 te Zevenaar. Het pand heeft een oppervlakte van 126m² en een perceeloppervlakte van 231m² en heeft 5 kamers kamers waarvan 3 slaapkamers. De geschatte waarde van deze woning is € 159.500.

Bekijk alle woningen in Lentemorgen I

Gegevens van Eengezinswoning, hoekwoning

Bouwjaar
1974
Geschatte waarde
€ 159.500
Oppervlakte
126 m2
Inhoud
400 m3
Aantal kamers
5 kamers
Slaapkamers
3
Badkamers
1 badkamer en 1 apart toilet
Soort bouw
Bestaande bouw
Eigendomssituatie
Volle eigendom
Ligging
In woonwijk
Tuin
Achtertuin

Voorzieningen in de buurt

Boodschappen0,9 km
Grote supermarkt0,9 km
Cafetaria0,9 km
Restaurant0,9 km
Huisarts0,5 km
Ziekenhuis1,2 km
Kinderdagverblijf0,9 km
BSO0,9 km
Alle voorzieningen in Lentemorgen I

Binnenkijken bij Zonegge 14 te Zevenaar

Meer meldingen in deze omgeving

112 melding
Woensdag 12-11-2025 om 16:09
Lentemorgen, Zevenaar

112 melding
Woensdag 12-11-2025 om 12:12
Esdoornstraat, 6903CL Zevenaar

Binnenkijken bij
Dinsdag 11-11-2025
Zonegge 2210, 6903HD Zevenaar

112 melding
Dinsdag 11-11-2025 om 10:41
De Hooge Bongert, 6903DG Zevenaar

112 melding
Dinsdag 11-11-2025 om 09:00
Esdoornstraat, 6903CL Zevenaar

Binnenkijken bij
Dinsdag 11-11-2025
Zonegge 0812, 6903ES Zevenaar

112 melding
Maandag 10-11-2025 om 10:19
Zonegge, 6903EL Zevenaar

112 melding
Zaterdag 8-11-2025 om 08:47
Esdoornstraat, 6903CL Zevenaar

Direct een e-mail ontvangen bij nieuwe meldingen in deze regio?

Meld je dan GRATIS aan voor de Oozo Alert service voor Lentemorgen I

Instellen

Meer nieuws in Lentemorgen I

Weten hoe eenvoudig het is om af te vallen? Zonder pillen en smeersels en zonder je in het zweet te werken!
Kijk op eenvoudig-afvallen.nl

© 2012 - 2025 OOZO.nl - info@oozo.nl - Gegevens verwijderen? | Disclaimer | Privacy statement