Woning Schumanstraat 8 Zevenaar

Schumanstraat 8, 6904LK Zevenaar

Ontvang updates voor Methen

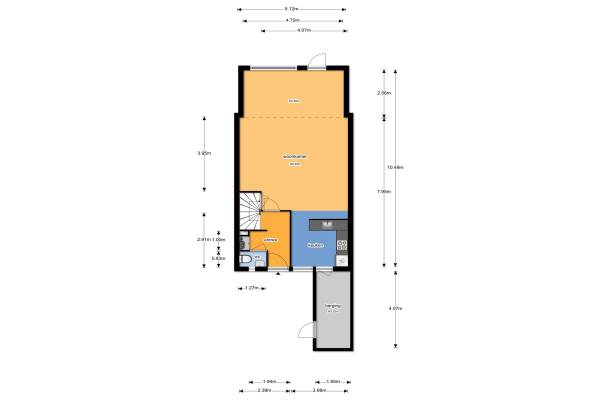
Het adres van deze woning uit 1986 is Schumanstraat 8 te Zevenaar. Het pand heeft een oppervlakte van 121m² en een perceeloppervlakte van 147m² en heeft 5 kamers kamers waarvan 4 slaapkamers. De geschatte waarde van deze woning is € 175.000.

Bekijk alle woningen in Methen

Gegevens van Eengezinswoning, tussenwoning

Bouwjaar
1986
Geschatte waarde
€ 175.000
Oppervlakte
121 m2
Inhoud
400 m3
Aantal kamers
5 kamers
Slaapkamers
4
Badkamers
1 badkamer en 1 apart toilet
Soort bouw
Bestaande bouw
Eigendomssituatie
Volle eigendom
Ligging
In woonwijk
Tuin
Achtertuin en voortuin
Achtertuin
55 m² (10m diep en 5,5m breed)

Voorzieningen in de buurt

Boodschappen1,0 km
Grote supermarkt1,1 km
Cafetaria0,6 km
Restaurant1,5 km
Huisarts1,4 km
Ziekenhuis1,9 km
Kinderdagverblijf0,9 km
BSO0,9 km
Alle voorzieningen in Methen

Binnenkijken bij Schumanstraat 8 te Zevenaar

Meer meldingen in deze omgeving

112 melding
Vrijdag 16-1-2026 om 10:20
Weilburglaan, 6904MD Zevenaar

112 melding
Woensdag 14-1-2026 om 09:19
Weilburglaan, 6904MD Zevenaar

112 melding
Dinsdag 13-1-2026 om 08:49
Weilburglaan, 6904MD Zevenaar

112 melding
Dinsdag 13-1-2026 om 08:49
Weilburglaan, 6904MD Zevenaar

112 melding
Donderdag 8-1-2026 om 14:29
Ardèchelaan, 6904NG Zevenaar

112 melding
Dinsdag 6-1-2026 om 16:26
Heerenmäten, 6904GZ Zevenaar

112 melding
Dinsdag 6-1-2026 om 10:28
Ardèchelaan, 6904NG Zevenaar

112 melding
Dinsdag 6-1-2026 om 08:03
Vedel, 6904PJ Zevenaar

Direct een e-mail ontvangen bij nieuwe meldingen in deze regio?

Meld je dan GRATIS aan voor de Oozo Alert service voor Methen

Instellen

Meer nieuws in Methen

Weten hoe eenvoudig het is om af te vallen? Zonder pillen en smeersels en zonder je in het zweet te werken!
Kijk op eenvoudig-afvallen.nl

© 2012 - 2026 OOZO.nl - info@oozo.nl - Gegevens verwijderen? | Disclaimer | Privacy statement