Woning Frans Halsstraat 42 Zoetermeer

Frans Halsstraat 42, 2712JV Zoetermeer

Ontvang updates voor Dorp

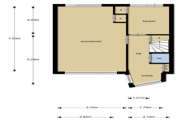
Het adres van deze woning uit 1959 is Frans Halsstraat 42 te Zoetermeer. Het pand heeft een oppervlakte van 82m² en een perceeloppervlakte van 205m² en heeft 4 kamers kamers waarvan 3 slaapkamers. De geschatte waarde van deze woning is € 250.000.

Bekijk alle woningen in Dorp

Gegevens van Eengezinswoning, hoekwoning

Bouwjaar
1959
Geschatte waarde
€ 250.000
Oppervlakte
82 m2
Inhoud
246 m3
Aantal kamers
4 kamers
Slaapkamers
3
Badkamers
1 badkamer en 1 apart toilet
Soort bouw
Bestaande bouw
Eigendomssituatie
Volle eigendom
Ligging
Aan rustige weg en in woonwijk
Tuin
Achtertuin, voortuin en zijtuin
Achtertuin
119 m² (9,5m diep en 12,5m breed)

Voorzieningen in de buurt

Boodschappen0,3 km
Grote supermarkt0,6 km
Cafetaria0,3 km
Restaurant0,2 km
Huisarts0,9 km
Ziekenhuis1,9 km
Kinderdagverblijf0,3 km
BSO0,4 km
Alle voorzieningen in Dorp

Binnenkijken bij Frans Halsstraat 42 te Zoetermeer

Meer meldingen in deze omgeving

112 melding
Dinsdag 16-12-2025 om 23:47
Oranjelaan, Zoetermeer

112 melding
Dinsdag 16-12-2025 om 15:51
Karel Doormanlaan, Zoetermeer

Nieuw bedrijf
December 2025
Dorpsstraat 73B, 2712AD Zoetermeer

112 melding
Zaterdag 13-12-2025 om 19:25
Van Brakelstraat, Zoetermeer

112 melding
Zaterdag 13-12-2025 om 13:49
Schinkelweg, Zoetermeer

112 melding
Zaterdag 13-12-2025 om 11:18
Nassaulaan, Zoetermeer

Binnenkijken bij
Zaterdag 13-12-2025
Van Goghstraat 2, 2712SL Zoetermeer

112 melding
Vrijdag 12-12-2025 om 15:56
Nassaulaan, Zoetermeer

Direct een e-mail ontvangen bij nieuwe meldingen in deze regio?

Meld je dan GRATIS aan voor de Oozo Alert service voor Dorp

Instellen

Meer nieuws in Dorp

Weten hoe eenvoudig het is om af te vallen? Zonder pillen en smeersels en zonder je in het zweet te werken!
Kijk op eenvoudig-afvallen.nl

© 2012 - 2025 OOZO.nl - info@oozo.nl - Gegevens verwijderen? | Disclaimer | Privacy statement