Woning Johan Willem Frisostraat 139 Zoetermeer

Johan Willem Frisostraat 139, 2713CC Zoetermeer

Ontvang updates voor Driemanspolder

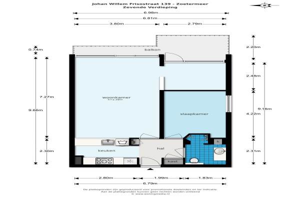
Het adres van deze woning uit 1973 is Johan Willem Frisostraat 139 te Zoetermeer. Het pand heeft een oppervlakte van 64m² en heeft 3 kamers kamers waarvan 2 slaapkamers. De geschatte waarde van deze woning is € 155.000.

Bekijk alle woningen in Driemanspolder

Gegevens van Tussenverdieping (appartement)

Bouwjaar
1973
Geschatte waarde
€ 155.000
Oppervlakte
64 m2
Inhoud
204 m3
Aantal kamers
3 kamers
Slaapkamers
2
Badkamers
1 badkamer
Soort bouw
Bestaande bouw
Ligging
Aan rustige weg, in woonwijk en vrij uitzicht

Voorzieningen in de buurt

Boodschappen0,6 km
Grote supermarkt0,6 km
Cafetaria0,5 km
Restaurant0,4 km
Huisarts0,8 km
Ziekenhuis1,7 km
Kinderdagverblijf0,6 km
BSO0,6 km
Alle voorzieningen in Driemanspolder

Binnenkijken bij Johan Willem Frisostraat 139 te Zoetermeer

Meer meldingen in deze omgeving

112 melding
Donderdag 11-12-2025 om 19:47
Afrikaweg, Zoetermeer

Nieuw bedrijf
December 2025
Dunantstraat 576, 2713XD Zoetermeer

Nieuw bedrijf
December 2025
Dunantstraat 1011, 2713TL Zoetermeer

Nieuw bedrijf
December 2025
J.L. van Rijweg 48, 2713JA Zoetermeer

112 melding
Woensdag 10-12-2025 om 13:05
Willem-Alexanderplantsoen, 2713VM Zoetermeer

112 melding
Woensdag 10-12-2025 om 09:38
Bijdorplaan, Zoetermeer

Binnenkijken bij
Woensdag 10-12-2025
Dunantstraat 1357, 2713TS Zoetermeer

112 melding
Woensdag 10-12-2025 om 01:14
Dunantstraat, Zoetermeer

Direct een e-mail ontvangen bij nieuwe meldingen in deze regio?

Meld je dan GRATIS aan voor de Oozo Alert service voor Driemanspolder

Instellen

Meer nieuws in Driemanspolder

Weten hoe eenvoudig het is om af te vallen? Zonder pillen en smeersels en zonder je in het zweet te werken!
Kijk op eenvoudig-afvallen.nl

© 2012 - 2025 OOZO.nl - info@oozo.nl - Gegevens verwijderen? | Disclaimer | Privacy statement