Woning Douzapad 32 Zoetermeer

Douzapad 32, 2722AX Zoetermeer

Ontvang updates voor Palenstein

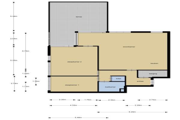
Het adres van deze woning uit 1978 is Douzapad 32 te Zoetermeer. Het pand heeft een oppervlakte van 100m² en heeft 3 kamers kamers waarvan 2 slaapkamers. De geschatte waarde van deze woning is € 225.000.

Bekijk alle woningen in Palenstein

Gegevens van Portiekflat (appartement)

Bouwjaar
1978
Geschatte waarde
€ 225.000
Oppervlakte
100 m2
Inhoud
280 m3
Aantal kamers
3 kamers
Slaapkamers
2
Badkamers
1 badkamer en 1 apart toilet
Soort bouw
Bestaande bouw
Eigendomssituatie
Volle eigendom
Ligging
In woonwijk en vrij uitzicht

Voorzieningen in de buurt

Boodschappen0,6 km
Grote supermarkt0,7 km
Cafetaria0,7 km
Restaurant0,4 km
Huisarts0,9 km
Ziekenhuis1,7 km
Kinderdagverblijf0,5 km
BSO0,6 km
Alle voorzieningen in Palenstein

Binnenkijken bij Douzapad 32 te Zoetermeer

Meer meldingen in deze omgeving

112 melding
Vrijdag 16-1-2026 om 19:11
Du Meelaan, Zoetermeer

112 melding
Vrijdag 16-1-2026 om 18:39
Rakkersveld, Zoetermeer

112 melding
Vrijdag 16-1-2026 om 16:36
Willem van Cleeflaan, Zoetermeer

112 melding
Donderdag 15-1-2026 om 10:16
Du Meelaan, Zoetermeer

Binnenkijken bij
Donderdag 15-1-2026
Du Meelaan 460, 2722ZK Zoetermeer

112 melding
Woensdag 14-1-2026 om 12:17
Willem van Cleeflaan, Zoetermeer

112 melding
Maandag 12-1-2026 om 09:07
Van Boisotring, Zoetermeer

112 melding
Zondag 11-1-2026 om 08:54
Van Wijngaardenstraat, Zoetermeer

Direct een e-mail ontvangen bij nieuwe meldingen in deze regio?

Meld je dan GRATIS aan voor de Oozo Alert service voor Palenstein

Instellen

Meer nieuws in Palenstein

Weten hoe eenvoudig het is om af te vallen? Zonder pillen en smeersels en zonder je in het zweet te werken!
Kijk op eenvoudig-afvallen.nl

© 2012 - 2026 OOZO.nl - info@oozo.nl - Gegevens verwijderen? | Disclaimer | Privacy statement