Woning Binnenwater 38 Zoetermeer

Binnenwater 38, 2715GB Zoetermeer

Ontvang updates voor Meerzicht-Oost

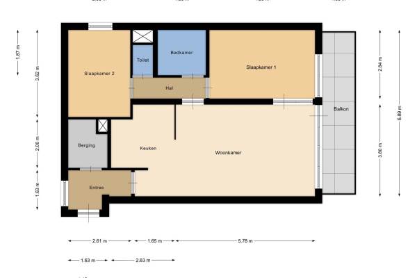
Het adres van deze woning uit 1973 is Binnenwater 38 te Zoetermeer. Het pand heeft een oppervlakte van 69m² en heeft 3 kamers kamers waarvan 2 slaapkamers. De geschatte waarde van deze woning is € 170.850.

Bekijk alle woningen in Meerzicht-Oost

Gegevens van Portiekflat

Bouwjaar
1973
Geschatte waarde
€ 170.850
Oppervlakte
69 m2
Inhoud
200 m3
Aantal kamers
3 kamers
Slaapkamers
2
Badkamers
1 badkamer en 1 apart toilet
Soort bouw
Bestaande bouw
Eigendomssituatie
Volle eigendom
Ligging
In woonwijk

Voorzieningen in de buurt

Boodschappen0,9 km
Grote supermarkt1,0 km
Cafetaria0,9 km
Restaurant0,8 km
Huisarts0,9 km
Ziekenhuis2,2 km
Kinderdagverblijf0,5 km
BSO0,5 km
Alle voorzieningen in Meerzicht-Oost

Binnenkijken bij Binnenwater 38 te Zoetermeer

Meer meldingen in deze omgeving

112 melding
Vrijdag 14-11-2025 om 15:43
Albrandswaard, Zoetermeer

112 melding
Vrijdag 14-11-2025 om 15:33
Albrandswaard, Zoetermeer

112 melding
Vrijdag 14-11-2025 om 12:48
Albrandswaard, Zoetermeer

Binnenkijken bij
Vrijdag 14-11-2025
Jonkerbos 61, 2715SM Zoetermeer

Nieuw bedrijf
November 2025
Belvédèrebos 163, 2715VJ Zoetermeer

Nieuw bedrijf
November 2025
Nieuwewater 47, 2715BR Zoetermeer

Nieuw bedrijf
November 2025
Zwanewater 22, 2715BJ Zoetermeer

112 melding
Donderdag 13-11-2025 om 22:58
Uiterwaard, Zoetermeer

Direct een e-mail ontvangen bij nieuwe meldingen in deze regio?

Meld je dan GRATIS aan voor de Oozo Alert service voor Meerzicht-Oost

Instellen

Meer nieuws in Meerzicht-Oost

Weten hoe eenvoudig het is om af te vallen? Zonder pillen en smeersels en zonder je in het zweet te werken!
Kijk op eenvoudig-afvallen.nl

© 2012 - 2025 OOZO.nl - info@oozo.nl - Gegevens verwijderen? | Disclaimer | Privacy statement