Woning Binnenwater 4 Zoetermeer

Binnenwater 4, 2715GA Zoetermeer

Ontvang updates voor Meerzicht-Oost

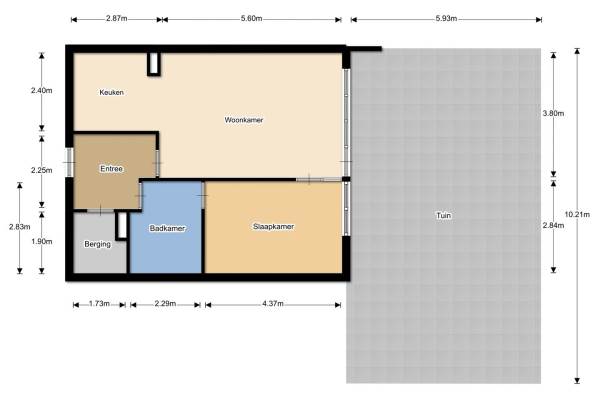
Het adres van deze woning uit 1973 is Binnenwater 4 te Zoetermeer. Het pand heeft een oppervlakte van 57m² en heeft 2 kamers kamers waarvan 1 slaapkamers. De geschatte waarde van deze woning is € 178.500.

Bekijk alle woningen in Meerzicht-Oost

Gegevens van Portiekflat

Bouwjaar
1973
Geschatte waarde
€ 178.500
Oppervlakte
57 m2
Inhoud
170 m3
Aantal kamers
2 kamers
Slaapkamers
1
Badkamers
1 badkamer
Soort bouw
Bestaande bouw
Eigendomssituatie
Volle eigendom
Ligging
In woonwijk
Tuin
Achtertuin
Achtertuin
59 m² (5,8 meter diep en 10,2 meter breed)

Voorzieningen in de buurt

Boodschappen0,9 km
Grote supermarkt1,0 km
Cafetaria0,9 km
Restaurant0,8 km
Huisarts0,9 km
Ziekenhuis2,2 km
Kinderdagverblijf0,5 km
BSO0,5 km
Alle voorzieningen in Meerzicht-Oost

Binnenkijken bij Binnenwater 4 te Zoetermeer

Meer meldingen in deze omgeving

Nieuw bedrijf
Maart 2026
Jonkerbos 161, 2715ST Zoetermeer

112 melding
Donderdag 12-3-2026 om 18:23
Albrandswaard, Zoetermeer

112 melding
Donderdag 12-3-2026 om 11:17
Albrandswaard, Zoetermeer

112 melding
Donderdag 12-3-2026 om 08:59
Bredewater, 2715CA Zoetermeer

112 melding
Woensdag 11-3-2026 om 08:43
Bredewater, 2715CA Zoetermeer

112 melding
Dinsdag 10-3-2026 om 17:48
Haagsebos, Zoetermeer

112 melding
Dinsdag 10-3-2026 om 13:15
Alferbos, Zoetermeer

112 melding
Dinsdag 10-3-2026 om 13:11
Alferbos, Zoetermeer

Direct een e-mail ontvangen bij nieuwe meldingen in deze regio?

Meld je dan GRATIS aan voor de Oozo Alert service voor Meerzicht-Oost

Instellen

Meer nieuws in Meerzicht-Oost

Weten hoe eenvoudig het is om af te vallen? Zonder pillen en smeersels en zonder je in het zweet te werken!
Kijk op eenvoudig-afvallen.nl

© 2012 - 2026 OOZO.nl - info@oozo.nl - Gegevens verwijderen? | Disclaimer | Privacy statement