Woning Kadoelerbos 180 Zoetermeer

Kadoelerbos 180, 2715SJ Zoetermeer

Ontvang updates voor Meerzicht-Oost

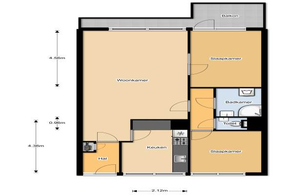
Het adres van deze woning is Kadoelerbos 180 te Zoetermeer. Het pand heeft een oppervlakte van 75m² en heeft 3 kamers kamers waarvan 2 slaapkamers. De geschatte waarde van deze woning is € 149.000.

Bekijk alle woningen in Meerzicht-Oost

Gegevens van Galerijflat (appartement)

Geschatte waarde
€ 149.000
Oppervlakte
75 m2
Inhoud
220 m3
Aantal kamers
3 kamers
Slaapkamers
2
Badkamers
1 badkamer en 1 apart toilet
Soort bouw
Bestaande bouw
Ligging
Aan rustige weg en in woonwijk

Voorzieningen in de buurt

Boodschappen0,9 km
Grote supermarkt1,0 km
Cafetaria0,9 km
Restaurant0,8 km
Huisarts0,9 km
Ziekenhuis2,2 km
Kinderdagverblijf0,5 km
BSO0,5 km
Alle voorzieningen in Meerzicht-Oost

Binnenkijken bij Kadoelerbos 180 te Zoetermeer

Meer meldingen in deze omgeving

112 melding
Zaterdag 14-3-2026 om 03:28
Dijkwater, Zoetermeer

Binnenkijken bij
Zaterdag 14-3-2026
Binnenwater 73, 2715GD Zoetermeer

112 melding
Vrijdag 13-3-2026 om 12:25
Bredewater, 2715CA Zoetermeer

Nieuw bedrijf
Maart 2026
Jonkerbos 161, 2715ST Zoetermeer

112 melding
Donderdag 12-3-2026 om 18:23
Albrandswaard, Zoetermeer

112 melding
Donderdag 12-3-2026 om 11:17
Albrandswaard, Zoetermeer

112 melding
Donderdag 12-3-2026 om 08:59
Bredewater, 2715CA Zoetermeer

112 melding
Woensdag 11-3-2026 om 08:43
Bredewater, 2715CA Zoetermeer

Direct een e-mail ontvangen bij nieuwe meldingen in deze regio?

Meld je dan GRATIS aan voor de Oozo Alert service voor Meerzicht-Oost

Instellen

Meer nieuws in Meerzicht-Oost

Weten hoe eenvoudig het is om af te vallen? Zonder pillen en smeersels en zonder je in het zweet te werken!
Kijk op eenvoudig-afvallen.nl

© 2012 - 2026 OOZO.nl - info@oozo.nl - Gegevens verwijderen? | Disclaimer | Privacy statement