Woning Vecht 31 Nieuwerkerk aan den IJssel

Vecht 31, 2911EL Nieuwerkerk aan den IJssel

Ontvang updates voor Esse Hoog

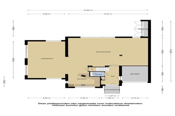
Het adres van deze woning uit 1995 is Vecht 31 te Nieuwerkerk aan den IJssel. Het pand heeft een oppervlakte van 247m² en een perceeloppervlakte van 349m² en heeft 6 kamers kamers waarvan 5 slaapkamers. De geschatte waarde van deze woning is € 835.000.

Bekijk alle woningen in Esse Hoog

Gegevens van Twee onder één kap

Bouwjaar
1995
Geschatte waarde
€ 835.000
Oppervlakte
247 m2
Inhoud
848 m3
Aantal kamers
6 kamers
Slaapkamers
5
Badkamers
1 badkamer en 1 apart toilet
Soort bouw
Bestaande bouw
Eigendomssituatie
Volle eigendom
Ligging
Aan rustige weg, aan water en in woonwijk
Tuin
Tuin

Voorzieningen in de buurt

Boodschappen1,7 km
Grote supermarkt1,6 km
Cafetaria1,7 km
Restaurant0,9 km
Huisarts1,0 km
Ziekenhuis1,7 km
Kinderdagverblijf0,6 km
BSO0,6 km
Alle voorzieningen in Esse Hoog

Binnenkijken bij Vecht 31 te Nieuwerkerk aan den IJssel

Meer meldingen in deze omgeving

112 melding
Vrijdag 21-11-2025 om 08:00
Vecht, Nieuwerkerk aan den IJssel

Nieuw bedrijf
November 2025
Veldewater 20, 2911PG Nieuwerkerk aan den IJssel

112 melding
Woensdag 19-11-2025 om 12:00
Gouwe, 2911GA Nieuwerkerk aan den IJssel

Binnenkijken bij
Dinsdag 11-11-2025
Gouwe 1, 2911GA Nieuwerkerk aan den IJssel

112 melding
Dinsdag 4-11-2025 om 07:26
Linge, Nieuwerkerk aan den IJssel

112 melding
Zaterdag 1-11-2025 om 23:08
Vecht, Nieuwerkerk aan den IJssel

112 melding
Donderdag 30-10-2025 om 08:28
Gouwe, 2911GA Nieuwerkerk aan den IJssel

Binnenkijken bij
Woensdag 29-10-2025
Gouwe 33, 2911GA Nieuwerkerk aan den IJssel

Direct een e-mail ontvangen bij nieuwe meldingen in deze regio?

Meld je dan GRATIS aan voor de Oozo Alert service voor Esse Hoog

Instellen

Meer nieuws in Esse Hoog

Weten hoe eenvoudig het is om af te vallen? Zonder pillen en smeersels en zonder je in het zweet te werken!
Kijk op eenvoudig-afvallen.nl

© 2012 - 2025 OOZO.nl - info@oozo.nl - Gegevens verwijderen? | Disclaimer | Privacy statement