Woning Dieze 25 Nieuwerkerk aan den IJssel

Dieze 25, 2911CS Nieuwerkerk aan den IJssel

Ontvang updates voor Esse Hoog

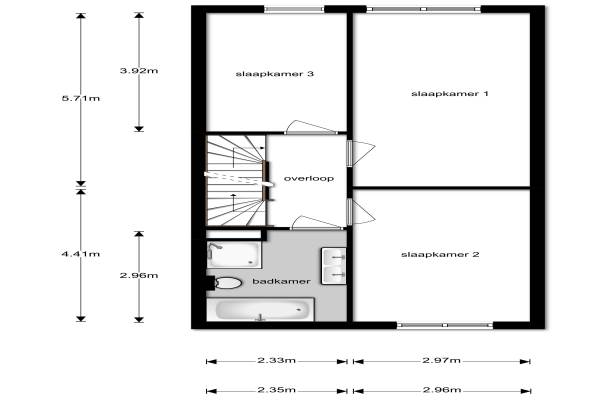
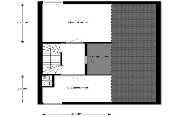
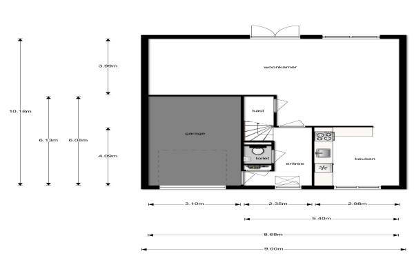
Het adres van deze woning uit 2009 is Dieze 25 te Nieuwerkerk aan den IJssel. Het pand heeft een oppervlakte van 164m² en een perceeloppervlakte van 248m² en heeft 6 kamers kamers waarvan 5 slaapkamers. De geschatte waarde van deze woning is € 539.000.

Bekijk alle woningen in Esse Hoog

Gegevens van Eengezinswoning, halfvrijstaande woning

Bouwjaar
2009
Geschatte waarde
€ 539.000
Oppervlakte
164 m2
Inhoud
540 m3
Aantal kamers
6 kamers
Slaapkamers
5
Badkamers
1 badkamer en 1 apart toilet
Soort bouw
Bestaande bouw
Eigendomssituatie
Volle eigendom
Ligging
Aan water, aan rustige weg en in woonwijk
Tuin
Achtertuin en voortuin
Achtertuin
91 m² (10,14m diep en 9m breed)

Voorzieningen in de buurt

Boodschappen1,7 km
Grote supermarkt1,6 km
Cafetaria1,7 km
Restaurant0,9 km
Huisarts1,0 km
Ziekenhuis1,7 km
Kinderdagverblijf0,6 km
BSO0,6 km
Alle voorzieningen in Esse Hoog

Binnenkijken bij Dieze 25 te Nieuwerkerk aan den IJssel

Meer meldingen in deze omgeving

Nieuw bedrijf
Mei 2026
Veldewater 52, 2911PG Nieuwerkerk aan den IJssel

Binnenkijken bij
Dinsdag 5-5-2026
Vecht 16, 2911EN Nieuwerkerk aan den IJssel

Binnenkijken bij
Dinsdag 5-5-2026
Dieze 35, 2911CS Nieuwerkerk aan den IJssel

Binnenkijken bij
Dinsdag 5-5-2026
Linge 35, 2911EJ Nieuwerkerk aan den IJssel

112 melding
Maandag 27-4-2026 om 19:16
Gouwe, 2911GA Nieuwerkerk aan den IJssel

112 melding
Zaterdag 18-4-2026 om 20:17
Merwede, Nieuwerkerk aan den IJssel

112 melding
Woensdag 15-4-2026 om 17:50
Veldewater, 2911PG Nieuwerkerk aan den IJssel

Binnenkijken bij
Vrijdag 10-4-2026
Vecht 101, 2911ER Nieuwerkerk aan den IJssel

Direct een e-mail ontvangen bij nieuwe meldingen in deze regio?

Meld je dan GRATIS aan voor de Oozo Alert service voor Esse Hoog

Instellen

Meer nieuws in Esse Hoog

Weten hoe eenvoudig het is om af te vallen? Zonder pillen en smeersels en zonder je in het zweet te werken!
Kijk op eenvoudig-afvallen.nl

© 2012 - 2026 OOZO.nl - info@oozo.nl - Gegevens verwijderen? | Disclaimer | Privacy statement