Woning Parallelweg-Zuid 149 Nieuwerkerk aan den IJssel

Parallelweg-Zuid 149, 2914LE Nieuwerkerk aan den IJssel

Ontvang updates voor Zuidplas Kruiden

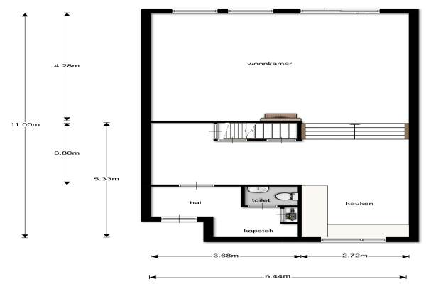
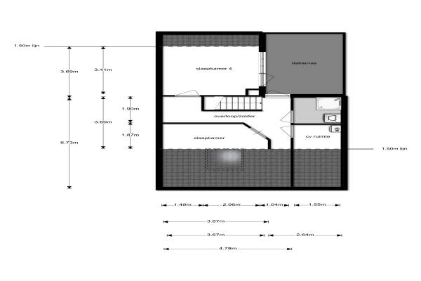
Het adres van deze woning uit 1986 is Parallelweg-Zuid 149 te Nieuwerkerk aan den IJssel. Het pand heeft een oppervlakte van 173m² en een perceeloppervlakte van 195m² en heeft 7 kamers kamers waarvan 6 slaapkamers. De geschatte waarde van deze woning is € 399.000.

Bekijk alle woningen in Zuidplas Kruiden

Gegevens van Eengezinswoning, tussenwoning

Bouwjaar
1986
Geschatte waarde
€ 399.000
Oppervlakte
173 m2
Inhoud
575 m3
Aantal kamers
7 kamers
Slaapkamers
6
Badkamers
2 badkamers en 1 apart toilet
Soort bouw
Bestaande bouw
Eigendomssituatie
Volle eigendom
Ligging
Aan rustige weg en in woonwijk
Tuin
Achtertuin
Achtertuin
69 m² (10,6m diep en 6,48m breed)

Voorzieningen in de buurt

Boodschappen0,7 km
Grote supermarkt1,3 km
Cafetaria1,3 km
Restaurant1,3 km
Huisarts1,1 km
Ziekenhuis1,8 km
Kinderdagverblijf0,6 km
BSO0,6 km
Alle voorzieningen in Zuidplas Kruiden

Binnenkijken bij Parallelweg-Zuid 149 te Nieuwerkerk aan den IJssel

Meer meldingen in deze omgeving

112 melding
Maandag 24-11-2025 om 20:55
Kroonkruid, Nieuwerkerk aan den IJssel

112 melding
Zondag 23-11-2025 om 06:14
Watertorkruid, 2914TR Nieuwerkerk aan den IJssel

112 melding
Zondag 23-11-2025 om 06:12
Watertorkruid, 2914TR Nieuwerkerk aan den IJssel

112 melding
Dinsdag 18-11-2025 om 14:11
Parallelweg-Zuid, 2914LE Nieuwerkerk aan den IJssel

112 melding
Maandag 17-11-2025 om 19:33
Kroonkruid, 2914BT Nieuwerkerk aan den IJssel

112 melding
Zondag 16-11-2025 om 14:14
Kroonkruid, Nieuwerkerk aan den IJssel

112 melding
Donderdag 13-11-2025 om 23:32
Hertenkruid, Nieuwerkerk aan den IJssel

112 melding
Woensdag 12-11-2025 om 10:39
Kroonkruid, 2914TK Nieuwerkerk aan den IJssel

Direct een e-mail ontvangen bij nieuwe meldingen in deze regio?

Meld je dan GRATIS aan voor de Oozo Alert service voor Zuidplas Kruiden

Instellen

Meer nieuws in Zuidplas Kruiden

Weten hoe eenvoudig het is om af te vallen? Zonder pillen en smeersels en zonder je in het zweet te werken!
Kijk op eenvoudig-afvallen.nl

© 2012 - 2025 OOZO.nl - info@oozo.nl - Gegevens verwijderen? | Disclaimer | Privacy statement