Woning Dornachstraat 41 Zutphen

Dornachstraat 41, 7207PB Zutphen

Ontvang updates voor Eme en Broek

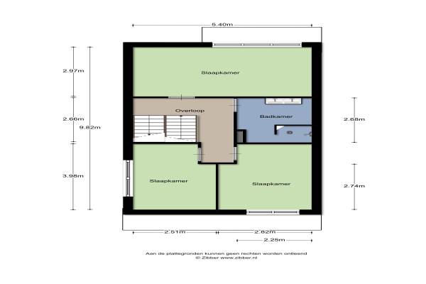
Het adres van deze woning uit 2007 is Dornachstraat 41 te Zutphen. Het pand heeft een oppervlakte van 153m² en een perceeloppervlakte van 221m² en heeft 5 kamers kamers waarvan 3 slaapkamers. De geschatte waarde van deze woning is € 315.000.

Bekijk alle woningen in Eme en Broek

Gegevens van Eengezinswoning, 2-onder-1-kapwoning

Bouwjaar
2007
Geschatte waarde
€ 315.000
Oppervlakte
153 m2
Inhoud
572 m3
Aantal kamers
5 kamers
Slaapkamers
3
Badkamers
1 badkamer en 1 apart toilet
Soort bouw
Bestaande bouw
Eigendomssituatie
Volle eigendom
Ligging
Aan rustige weg en in woonwijk
Tuin
Achtertuin, voortuin en zijtuin
Achtertuin
91 m² (10,2m diep en 8,9m breed)

Voorzieningen in de buurt

Boodschappen0,5 km
Grote supermarkt0,5 km
Cafetaria0,4 km
Restaurant3,1 km
Huisarts1,1 km
Ziekenhuis2,4 km
Kinderdagverblijf0,5 km
BSO0,5 km
Alle voorzieningen in Eme en Broek

Binnenkijken bij Dornachstraat 41 te Zutphen

Meer meldingen in deze omgeving

Nieuw bedrijf
November 2025
De Varentuin 12, 7207ML Zutphen

Binnenkijken bij
Vrijdag 21-11-2025
De Border 10, 7207MK Zutphen

Binnenkijken bij
Vrijdag 21-11-2025
Leestenseweg 18, 7207EA Zutphen

Binnenkijken bij
Vrijdag 14-11-2025
De Rozenhaag 6, 7207MA Zutphen

Nieuw bedrijf
November 2025
Leestenseweg 3, 7207EA Zutphen

Nieuw bedrijf
Oktober 2025
Goethesingel 3, 7207PK Zutphen

Binnenkijken bij
Zondag 19-10-2025
Dornachstraat 25, 7207PB Zutphen

Faillissement
Maandag 13-10-2025
Rudolf Steinerlaan 125, 7207PV Zutphen

Direct een e-mail ontvangen bij nieuwe meldingen in deze regio?

Meld je dan GRATIS aan voor de Oozo Alert service voor Eme en Broek

Instellen

Meer nieuws in Eme en Broek

Weten hoe eenvoudig het is om af te vallen? Zonder pillen en smeersels en zonder je in het zweet te werken!
Kijk op eenvoudig-afvallen.nl

© 2012 - 2025 OOZO.nl - info@oozo.nl - Gegevens verwijderen? | Disclaimer | Privacy statement