Woning Gershwinstraat 52 Zwijndrecht

Gershwinstraat 52, 3335WL Zwijndrecht

Ontvang updates voor Componistenbuurt-Noord

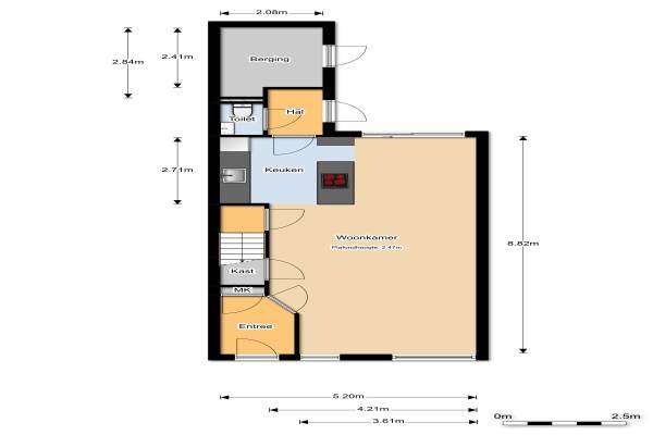
Het adres van deze woning uit 1986 is Gershwinstraat 52 te Zwijndrecht. Het pand heeft een oppervlakte van 109m² en een perceeloppervlakte van 116m² en heeft 5 kamers kamers waarvan 3 slaapkamers. De geschatte waarde van deze woning is € 209.000.

Bekijk alle woningen in Componistenbuurt-Noord

Gegevens van Eengezinswoning, tussenwoning

Bouwjaar
1986
Geschatte waarde
€ 209.000
Oppervlakte
109 m2
Inhoud
363 m3
Aantal kamers
5 kamers
Slaapkamers
3
Badkamers
1 apart toilet
Soort bouw
Bestaande bouw
Ligging
Aan rustige weg en in woonwijk
Tuin
Achtertuin en voortuin
Achtertuin
57 m² (10,43m diep en 5,5m breed)

Voorzieningen in de buurt

Boodschappen0,5 km
Grote supermarkt0,5 km
Cafetaria0,5 km
Restaurant1,0 km
Huisarts0,5 km
Ziekenhuis2,1 km
Kinderdagverblijf0,3 km
BSO0,3 km
Alle voorzieningen in Componistenbuurt-Noord

Binnenkijken bij Gershwinstraat 52 te Zwijndrecht

Meer meldingen in deze omgeving

112 melding
Dinsdag 18-11-2025 om 14:08
Escherstraat, 3335DC Zwijndrecht

112 melding
Dinsdag 18-11-2025 om 06:58
Escherstraat, 3335DC Zwijndrecht

112 melding
Dinsdag 18-11-2025 om 06:58
Escherstraat, 3335DC Zwijndrecht

Binnenkijken bij
Zondag 16-11-2025
Beethovenlaan 67, 3335BD Zwijndrecht

112 melding
Zaterdag 15-11-2025 om 14:43
Ellingtonstraat, 3335DB Zwijndrecht

112 melding
Dinsdag 11-11-2025 om 13:40
Escherstraat, 3335DC Zwijndrecht

112 melding
Maandag 10-11-2025 om 22:37
Escherstraat, 3335DC Zwijndrecht

112 melding
Maandag 10-11-2025 om 14:53
Ellingtonstraat, 3335DB Zwijndrecht

Direct een e-mail ontvangen bij nieuwe meldingen in deze regio?

Meld je dan GRATIS aan voor de Oozo Alert service voor Componistenbuurt-Noord

Instellen

Meer nieuws in Componistenbuurt-Noord

Weten hoe eenvoudig het is om af te vallen? Zonder pillen en smeersels en zonder je in het zweet te werken!
Kijk op eenvoudig-afvallen.nl

© 2012 - 2025 OOZO.nl - info@oozo.nl - Gegevens verwijderen? | Disclaimer | Privacy statement