Woning Patrijsstraat 15 Zwijndrecht

Patrijsstraat 15, 3334AB Zwijndrecht

Ontvang updates voor Vogelbuurt-Oost

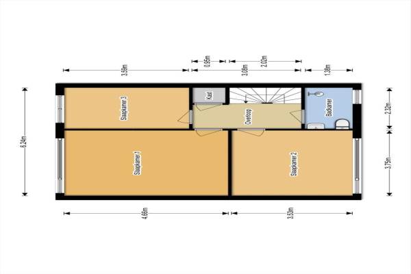
Het adres van deze woning uit 1968 is Patrijsstraat 15 te Zwijndrecht. Het pand heeft een oppervlakte van 126m² en een perceeloppervlakte van 136m² en heeft 5 kamers kamers waarvan 4 slaapkamers. De geschatte waarde van deze woning is € 200.000.

Bekijk alle woningen in Vogelbuurt-Oost

Gegevens van Eengezinswoning, tussenwoning

Bouwjaar
1968
Geschatte waarde
€ 200.000
Oppervlakte
126 m2
Inhoud
395 m3
Aantal kamers
5 kamers
Slaapkamers
4
Soort bouw
Bestaande bouw
Eigendomssituatie
Volle eigendom
Ligging
Aan rustige weg

Voorzieningen in de buurt

Boodschappen0,7 km
Grote supermarkt0,7 km
Cafetaria0,2 km
Restaurant0,8 km
Huisarts0,4 km
Ziekenhuis2,4 km
Kinderdagverblijf0,3 km
BSO0,3 km
Alle voorzieningen in Vogelbuurt-Oost

Binnenkijken bij Patrijsstraat 15 te Zwijndrecht

Meer meldingen in deze omgeving

112 melding
Woensdag 29-10-2025 om 23:46
Sperwerstraat, Zwijndrecht

112 melding
Woensdag 29-10-2025 om 11:51
Spechtstraat, 3334AH Zwijndrecht

112 melding
Woensdag 29-10-2025 om 11:45
Roerdompstraat, 3334AG Zwijndrecht

112 melding
Donderdag 23-10-2025 om 21:39
Waterhoenstraat, Zwijndrecht

112 melding
Donderdag 23-10-2025 om 21:39
Waterhoenstraat, Zwijndrecht

112 melding
Donderdag 23-10-2025 om 12:06
Sperwerstraat, 3334AK Zwijndrecht

112 melding
Donderdag 23-10-2025 om 12:06
Sperwerstraat, 3334AK Zwijndrecht

112 melding
Donderdag 23-10-2025 om 10:41
Nachtegaalstraat, 3334SX Zwijndrecht

Direct een e-mail ontvangen bij nieuwe meldingen in deze regio?

Meld je dan GRATIS aan voor de Oozo Alert service voor Vogelbuurt-Oost

Instellen

Meer nieuws in Vogelbuurt-Oost

Weten hoe eenvoudig het is om af te vallen? Zonder pillen en smeersels en zonder je in het zweet te werken!
Kijk op eenvoudig-afvallen.nl

© 2012 - 2025 OOZO.nl - info@oozo.nl - Gegevens verwijderen? | Disclaimer | Privacy statement