Woning Officiersvliet 28 Zwijndrecht

Officiersvliet 28, 3331KM Zwijndrecht

Ontvang updates voor Officiervliet-Oost

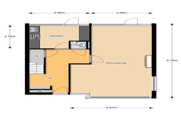
Het adres van deze woning uit 1960 is Officiersvliet 28 te Zwijndrecht. Het pand heeft een oppervlakte van 125m² en een perceeloppervlakte van 256m² en heeft 5 kamers kamers waarvan 4 slaapkamers. De geschatte waarde van deze woning is € 375.000.

Bekijk alle woningen in Officiervliet-Oost

Gegevens van Eengezinswoning, 2-onder-1-kapwoning

Bouwjaar
1960
Geschatte waarde
€ 375.000
Oppervlakte
125 m2
Inhoud
430 m3
Aantal kamers
5 kamers
Slaapkamers
4
Badkamers
1 badkamer en 1 apart toilet
Soort bouw
Bestaande bouw
Eigendomssituatie
Volle eigendom
Ligging
Vrij uitzicht
Tuin
Achtertuin en voortuin
Achtertuin
70 m² (10m diep en 7m breed)

Voorzieningen in de buurt

Boodschappen0,8 km
Grote supermarkt0,9 km
Cafetaria0,5 km
Restaurant0,8 km
Huisarts1,0 km
Ziekenhuis0,9 km
Kinderdagverblijf0,7 km
BSO1,5 km
Alle voorzieningen in Officiervliet-Oost

Binnenkijken bij Officiersvliet 28 te Zwijndrecht

Meer meldingen in deze omgeving

112 melding
Woensdag 31-12-2025 om 10:58
Landmanweg, 3331KJ Zwijndrecht

112 melding
Maandag 29-12-2025 om 13:10
Jeroen Boschlaan, 3331HS Zwijndrecht

112 melding
Woensdag 24-12-2025 om 21:46
Jeroen Boschlaan, 3331HS Zwijndrecht

112 melding
Woensdag 24-12-2025 om 21:46
Jeroen Boschlaan, 3331HS Zwijndrecht

112 melding
Dinsdag 23-12-2025 om 12:02
Landmanweg, 3331KK Zwijndrecht

112 melding
Dinsdag 23-12-2025 om 11:38
Officiersvliet, 3331KM Zwijndrecht

112 melding
Maandag 22-12-2025 om 08:56
Officiersvliet, 3331KM Zwijndrecht

112 melding
Zaterdag 20-12-2025 om 16:00
Willem de Goedeweg, 3331KT Zwijndrecht

Direct een e-mail ontvangen bij nieuwe meldingen in deze regio?

Meld je dan GRATIS aan voor de Oozo Alert service voor Officiervliet-Oost

Instellen

Meer nieuws in Officiervliet-Oost

Weten hoe eenvoudig het is om af te vallen? Zonder pillen en smeersels en zonder je in het zweet te werken!
Kijk op eenvoudig-afvallen.nl

© 2012 - 2026 OOZO.nl - info@oozo.nl - Gegevens verwijderen? | Disclaimer | Privacy statement