Woning Hardesteinstraat 35 Zwolle

Hardesteinstraat 35, 8012ES Zwolle

Ontvang updates voor Wezenlanden

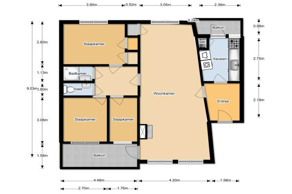
Het adres van deze woning uit 1957 is Hardesteinstraat 35 te Zwolle. Het pand heeft een oppervlakte van 80m² en heeft 4 kamers kamers waarvan 3 slaapkamers. De geschatte waarde van deze woning is € 165.000.

Bekijk alle woningen in Wezenlanden

Gegevens van Portiekflat (appartement)

Bouwjaar
1957
Geschatte waarde
€ 165.000
Oppervlakte
80 m2
Inhoud
228 m3
Aantal kamers
4 kamers
Slaapkamers
3
Soort bouw
Bestaande bouw
Ligging
Aan park, aan rustige weg, in centrum en in woonwijk

Voorzieningen in de buurt

Boodschappen0,5 km
Grote supermarkt0,6 km
Cafetaria0,5 km
Restaurant0,4 km
Huisarts0,5 km
Ziekenhuis2,0 km
Kinderdagverblijf0,5 km
BSO0,5 km
Alle voorzieningen in Wezenlanden

Binnenkijken bij Hardesteinstraat 35 te Zwolle

Meer meldingen in deze omgeving

Binnenkijken bij
Vrijdag 12-12-2025
Hardesteinstraat 41, 8012ES Zwolle

112 melding
Vrijdag 5-12-2025 om 18:53
Schuurmanstraat, Zwolle

112 melding
Vrijdag 5-12-2025 om 18:53
Schuurmanstraat, Zwolle

Binnenkijken bij
Dinsdag 2-12-2025
Schuurmanstraat 37E, 8011KC Zwolle

Faillissement
Vrijdag 28-11-2025
Assendorperdijk 1, 8012EG Zwolle

112 melding
Woensdag 19-11-2025 om 14:32
Schuurmanstraat, Zwolle

Binnenkijken bij
Dinsdag 11-11-2025
Ten Oeverstraat 106, 8012EX Zwolle

Nieuw bedrijf
November 2025
Ten Oeverstraat 66, 8012EW Zwolle

Direct een e-mail ontvangen bij nieuwe meldingen in deze regio?

Meld je dan GRATIS aan voor de Oozo Alert service voor Wezenlanden

Instellen

Meer nieuws in Wezenlanden

Weten hoe eenvoudig het is om af te vallen? Zonder pillen en smeersels en zonder je in het zweet te werken!
Kijk op eenvoudig-afvallen.nl

© 2012 - 2025 OOZO.nl - info@oozo.nl - Gegevens verwijderen? | Disclaimer | Privacy statement