Woning Aplein 10 Zwolle

Aplein 10, 8011TK Zwolle

Ontvang updates voor Binnenstad-Noord

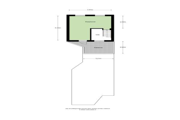
Het adres van deze woning uit 1976 is Aplein 10 te Zwolle. Het pand heeft een oppervlakte van 95m² en heeft 3 kamers kamers waarvan 2 slaapkamers. De geschatte waarde van deze woning is € 298.000.

Bekijk alle woningen in Binnenstad-Noord

Gegevens van Beneden + bovenwoning

Bouwjaar
1976
Geschatte waarde
€ 298.000
Oppervlakte
95 m2
Inhoud
350 m3
Aantal kamers
3 kamers
Slaapkamers
2
Soort bouw
Bestaande bouw
Eigendomssituatie
Volle eigendom
Ligging
Aan rustige weg en in centrum
Tuin
Patio/atrium

Voorzieningen in de buurt

Boodschappen0,1 km
Grote supermarkt0,5 km
Cafetaria0,1 km
Restaurant0,1 km
Huisarts0,8 km
Ziekenhuis2,5 km
Kinderdagverblijf0,8 km
BSO1,0 km
Alle voorzieningen in Binnenstad-Noord

Binnenkijken bij Aplein 10 te Zwolle

Meer meldingen in deze omgeving

Nieuw bedrijf
Maart 2026
Nieuwstraat 52F, 8011TR Zwolle

Binnenkijken bij
Maandag 23-3-2026
Nieuwstraat 21, 8011TL Zwolle

112 melding
Vrijdag 20-3-2026 om 12:04
Pletterstraat, 8011VG Zwolle

112 melding
Vrijdag 20-3-2026 om 12:04
Pletterstraat, 8011VG Zwolle

Binnenkijken bij
Donderdag 19-3-2026
Drie Pistolengang 218, 8011XH Zwolle

Binnenkijken bij
Donderdag 19-3-2026
Drie Pistolengang 2311, 8011XH Zwolle

Binnenkijken bij
Donderdag 19-3-2026
Drie Pistolengang 240, 8011XH Zwolle

Binnenkijken bij
Donderdag 19-3-2026
Drie Pistolengang 2306, 8011XH Zwolle

Direct een e-mail ontvangen bij nieuwe meldingen in deze regio?

Meld je dan GRATIS aan voor de Oozo Alert service voor Binnenstad-Noord

Instellen

Meer nieuws in Binnenstad-Noord

Weten hoe eenvoudig het is om af te vallen? Zonder pillen en smeersels en zonder je in het zweet te werken!
Kijk op eenvoudig-afvallen.nl

© 2012 - 2026 OOZO.nl - info@oozo.nl - Gegevens verwijderen? | Disclaimer | Privacy statement