Woning Domela Nieuwenhuisware 56 Zwolle

Domela Nieuwenhuisware 56, 8014TR Zwolle

Ontvang updates voor Ittersumerlanden

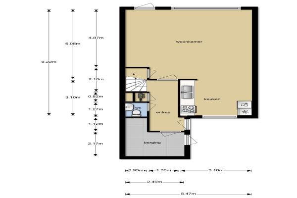
Het adres van deze woning uit 1985 is Domela Nieuwenhuisware 56 te Zwolle. Het pand heeft een oppervlakte van 113m² en een perceeloppervlakte van 122m² en heeft 5 kamers kamers waarvan 4 slaapkamers. De geschatte waarde van deze woning is € 215.000.

Bekijk alle woningen in Ittersumerlanden

Gegevens van Eengezinswoning, tussenwoning

Bouwjaar
1985
Geschatte waarde
€ 215.000
Oppervlakte
113 m2
Inhoud
360 m3
Aantal kamers
5 kamers
Slaapkamers
4
Badkamers
1 badkamer en 1 apart toilet
Soort bouw
Bestaande bouw
Eigendomssituatie
Volle eigendom
Ligging
In woonwijk
Tuin
Achtertuin en voortuin
Achtertuin
38 m² (7,5m diep en 5m breed)

Voorzieningen in de buurt

Boodschappen0,5 km
Grote supermarkt0,6 km
Cafetaria0,5 km
Restaurant0,5 km
Huisarts0,4 km
Ziekenhuis5,3 km
Kinderdagverblijf0,4 km
BSO0,4 km
Alle voorzieningen in Ittersumerlanden

Binnenkijken bij Domela Nieuwenhuisware 56 te Zwolle

Meer meldingen in deze omgeving

Binnenkijken bij
Donderdag 9-10-2025
Staatsmanlaan 16, 8014TV Zwolle

Binnenkijken bij
Donderdag 9-10-2025
Ministerlaan 114, 8014XJ Zwolle

Nieuw bedrijf
Oktober 2025
Domela Nieuwenhuisware 54, 8014TR Zwolle

Nieuw bedrijf
Oktober 2025
Van der Capellenstraat 95A, 8014VW Zwolle

Nieuw bedrijf
Oktober 2025
Patriottenlaan 4, 8014XP Zwolle

Binnenkijken bij
Donderdag 25-9-2025
Broederschap 37, 8014XB Zwolle

112 melding
Zondag 21-9-2025 om 08:43
Ministerlaan, Zwolle

112 melding
Zaterdag 20-9-2025 om 15:51
Ministerlaan, 8014PK Zwolle

Direct een e-mail ontvangen bij nieuwe meldingen in deze regio?

Meld je dan GRATIS aan voor de Oozo Alert service voor Ittersumerlanden

Instellen

Meer nieuws in Ittersumerlanden

Weten hoe eenvoudig het is om af te vallen? Zonder pillen en smeersels en zonder je in het zweet te werken!
Kijk op eenvoudig-afvallen.nl

© 2012 - 2025 OOZO.nl - info@oozo.nl - Gegevens verwijderen? | Disclaimer | Privacy statement