Woning Van Limburg Stirumware 48 Zwolle

Van Limburg Stirumware 48, 8014PB Zwolle

Ontvang updates voor Ittersumerlanden

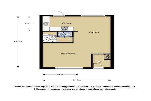
Het adres van deze woning uit 1982 is Van Limburg Stirumware 48 te Zwolle. Het pand heeft een oppervlakte van 88m² en een perceeloppervlakte van 144m² en heeft 4 kamers kamers waarvan 3 slaapkamers. De geschatte waarde van deze woning is € 185.000.

Bekijk alle woningen in Ittersumerlanden

Gegevens van Eengezinswoning, tussenwoning

Bouwjaar
1982
Geschatte waarde
€ 185.000
Oppervlakte
88 m2
Inhoud
265 m3
Aantal kamers
4 kamers
Slaapkamers
3
Badkamers
1 apart toilet
Soort bouw
Bestaande bouw
Eigendomssituatie
Volle eigendom
Ligging
In woonwijk
Tuin
Achtertuin en voortuin
Achtertuin
61 m² (11m diep en 5,5m breed)

Voorzieningen in de buurt

Boodschappen0,5 km
Grote supermarkt0,6 km
Cafetaria0,5 km
Restaurant0,5 km
Huisarts0,4 km
Ziekenhuis5,3 km
Kinderdagverblijf0,4 km
BSO0,4 km
Alle voorzieningen in Ittersumerlanden

Binnenkijken bij Van Limburg Stirumware 48 te Zwolle

Meer meldingen in deze omgeving

Nieuw bedrijf
November 2025
Van Hogendorpware 115, 8014RL Zwolle

Nieuw bedrijf
November 2025
Van der Capellenstraat 157, 8014VW Zwolle

Nieuw bedrijf
November 2025
Van Hallware 72, 8014RT Zwolle

112 melding
Maandag 3-11-2025 om 11:18
Van der Capellenstraat, Zwolle

Binnenkijken bij
Donderdag 30-10-2025
Van Maanenware 22, 8014PP Zwolle

Binnenkijken bij
Woensdag 29-10-2025
Van Limburg Stirumware 72, 8014PB Zwolle

Binnenkijken bij
Woensdag 29-10-2025
Ministerlaan 172, 8014XK Zwolle

Binnenkijken bij
Woensdag 29-10-2025
Van Limburg Stirumware 17, 8014PD Zwolle

Direct een e-mail ontvangen bij nieuwe meldingen in deze regio?

Meld je dan GRATIS aan voor de Oozo Alert service voor Ittersumerlanden

Instellen

Meer nieuws in Ittersumerlanden

Weten hoe eenvoudig het is om af te vallen? Zonder pillen en smeersels en zonder je in het zweet te werken!
Kijk op eenvoudig-afvallen.nl

© 2012 - 2025 OOZO.nl - info@oozo.nl - Gegevens verwijderen? | Disclaimer | Privacy statement