Woning Oranje Nassaulaan 12 Zwolle

Oranje Nassaulaan 12, 8019ZB Zwolle

Ontvang updates voor Veerallee

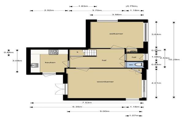
Het adres van deze woning is Oranje Nassaulaan 12 te Zwolle. Het pand heeft een oppervlakte van 134m² en een perceeloppervlakte van 213m² en heeft 6 kamers kamers waarvan 4 slaapkamers. De geschatte waarde van deze woning is € 539.000.

Bekijk alle woningen in Veerallee

Gegevens van Herenhuis, 2-onder-1-kapwoning

Geschatte waarde
€ 539.000
Oppervlakte
134 m2
Inhoud
430 m3
Aantal kamers
6 kamers
Slaapkamers
4
Badkamers
1 badkamer en 1 apart toilet
Soort bouw
Bestaande bouw
Eigendomssituatie
Volle eigendom
Ligging
Aan rustige weg en in woonwijk
Tuin
Voortuin, zijtuin en achtertuin
Achtertuin
58 m² (10m diep en 5,75m breed)

Voorzieningen in de buurt

Boodschappen1,4 km
Grote supermarkt1,2 km
Cafetaria1,5 km
Restaurant0,8 km
Huisarts1,4 km
Ziekenhuis4,3 km
Kinderdagverblijf0,5 km
BSO1,1 km
Alle voorzieningen in Veerallee

Binnenkijken bij Oranje Nassaulaan 12 te Zwolle

Meer meldingen in deze omgeving

Binnenkijken bij
Donderdag 16-10-2025
Prinses Marijkestraat 5, 8019ZC Zwolle

Nieuw bedrijf
Oktober 2025
Prins Mauritsstraat 19, 8019XR Zwolle

Binnenkijken bij
Zaterdag 11-10-2025
Prins Alexanderstraat 34, 8019XH Zwolle

Binnenkijken bij
Zaterdag 11-10-2025
Willemsvaart 13, 8019AB Zwolle

Binnenkijken bij
Donderdag 9-10-2025
Prinses Beatrixstraat 14, 8019XE Zwolle

112 melding
Woensdag 8-10-2025 om 17:39
Willemsvaart, Zwolle

Nieuw bedrijf
Oktober 2025
Prinses Julianastraat 44, 8019AX Zwolle

Nieuw bedrijf
Oktober 2025
Prins Hendrikstraat 17A, 8019AP Zwolle

Direct een e-mail ontvangen bij nieuwe meldingen in deze regio?

Meld je dan GRATIS aan voor de Oozo Alert service voor Veerallee

Instellen

Meer nieuws in Veerallee

Weten hoe eenvoudig het is om af te vallen? Zonder pillen en smeersels en zonder je in het zweet te werken!
Kijk op eenvoudig-afvallen.nl

© 2012 - 2025 OOZO.nl - info@oozo.nl - Gegevens verwijderen? | Disclaimer | Privacy statement